117 Thackeray Way Minto, Ontario N0G 1Z0

2 Bedroom 2 Bathroom 1,100 - 1,500 ft2
Bungalow Central Air Conditioning Forced Air Landscaped

$645,900

BUILDER'S BONUS!!! OFFERING $20,000 TOWARDS UPGRADES!!! THE CROSSROADS model is for those looking to right-size their home needs. A smaller bungalow with 2 bedrooms is a cozy and efficient home that offers a comfortable and single-level living experience for people of any age. Upon entering the home, you'll step into a welcoming foyer with a 9' ceiling height. The entryway includes a coat closet and a space for an entry table to welcome guests. Just off the entry is the first of 2 bedrooms. This bedroom can function for a child or as a home office, den, or guest room. The family bath is just around the corner past the main floor laundry closet. The central living space of the bungalow is designed for comfort and convenience. An open-concept layout combines the living room, dining area, and kitchen to create an inviting atmosphere for intimate family meals and gatherings. The primary bedroom is larger with views of the backyard and includes a good-sized walk-in closet, linen storage, and an ensuite bathroom for added privacy and comfort. The basement is roughed in for a future bath and awaits your optional finishing. BONUS: central air conditioning, asphalt paved driveway, garage door opener, holiday receptacle, perennial garden and walkway, sodded yards, egress window in basement, breakfast bar overhang, stone countertops in kitchen and baths, upgraded kitchen cabinets and more... Pick your own lot, floor plan, and colours with Finoro Homes at Maitland Meadows. Ask for a full list of incredible features! Several plans and lots to choose from Additional builder incentives available for a limited time only! Please note: Renderings are artists concept only and may not be exactly as shown. Exterior front porch posts included are full timber. (id:61594)

Open House

This property has open houses!

January
12
Monday
Starts at:

10:00 am

Ends at:

2:00 pm

January
14
Wednesday
Starts at:

10:00 am

Ends at:

2:00 pm

January
19
Monday
Starts at:

10:00 am

Ends at:

2:00 pm

January
21
Wednesday
Starts at:

10:00 am

Ends at:

2:00 pm

January
26
Monday
Starts at:

10:00 am

Ends at:

2:00 pm

January
28
Wednesday
Starts at:

10:00 am

Ends at:

2:00 pm

Property Details

MLS® Number X12082616
Property Type Single Family
Community Name Minto
Amenities Near By Place Of Worship, Park, Schools
Community Features Community Centre, School Bus
Equipment Type Water Heater
Features Flat Site, Lighting, Sump Pump
Parking Space Total 3
Rental Equipment Type Water Heater
Structure Porch

Building

Bathroom Total 2
Bedrooms Above Ground 2
Bedrooms Total 2
Age New Building
Appliances Garage Door Opener Remote(s), Water Heater - Tankless
Architectural Style Bungalow
Basement Development Unfinished
Basement Type Full (unfinished)
Construction Style Attachment Detached
Cooling Type Central Air Conditioning
Exterior Finish Brick, Stone
Foundation Type Poured Concrete
Heating Fuel Natural Gas
Heating Type Forced Air
Stories Total 1
Size Interior 1,100 - 1,500 Ft2
Type House
Utility Water Municipal Water

Parking

Attached Garage
Garage

Land

Acreage No
Land Amenities Place Of Worship, Park, Schools
Landscape Features Landscaped
Sewer Sanitary Sewer
Size Depth 100 Ft ,2 In
Size Frontage 40 Ft ,1 In
Size Irregular 40.1 X 100.2 Ft
Size Total Text 40.1 X 100.2 Ft
Zoning Description R2

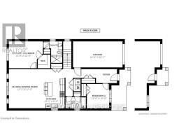
Rooms

Level Type Dimensions
Main Level Foyer 2.87 m x 1.96 m
Main Level Bedroom 2 3.28 m x 3.3 m
Main Level Bathroom 2.97 m x 1.52 m
Main Level Kitchen 4.09 m x 2.59 m
Main Level Dining Room 5.33 m x 2.59 m
Main Level Living Room 5.33 m x 2.59 m
Main Level Primary Bedroom 3.81 m x 3.66 m
Main Level Bathroom 2.54 m x 2.82 m
Main Level Laundry Room 1.75 m x 1.88 m

https://www.realtor.ca/real-estate/28167613/117-thackeray-way-minto-minto

Contact Us

Contact us for more information

Generating Captcha

Your Favourites

 

No Favourites Found