3 Bedroom
3 Bathroom
1,400 - 1,599 ft2
Fireplace
Central Air Conditioning
Forced Air
Lawn Sprinkler
$799,900Maintenance, Water, Common Area Maintenance, Insurance
$560 Monthly
BEAUTIFUL BUNGALOFT ADULT GOLFING COMMUNITY OF BRIAR HILL! Extensive renovations, dressed to impress from top to bottom! Entertain in style, grand dining room with cathedral ceilings across from a lovely formal living room. Beautifully upgraded kitchen with Quartz counter top/backsplash, newer stainless appliances, with a breakfast bar and open to Great Room, cathedral ceilings, gas fireplace and a walk out to the deck. Deck has composite decking, privacy screens and an awning. Escape to your spacious Primary suite with w/walk in closet, four piece ensuite, separate shower. Family or friends can enjoy the loft bedroom with cathedral ceilings or use it for an office/library. Main floor guest bathroom is full 4 piece. The basement has been totally renovated with loads of pot lights, Napoleon electric fireplace and a perfect place for your Big Screen TV! Cozy and luxurious broadloom and a built in bookcase. The 3rd bedroom is roomy with double closets and a 3 piece bathroom close by for guests. The other room is set up like a kitchen, full of cabinetry for extra storage. Roomy cold cellar and a few extra closets. NEWER LIST: FURNACE, AIR CONDITIONER, FRIDGE & STOVE, DISHWASHER, MICROWAVE/FAN, WASHER/DRYER, QUARTS COUNTER/BACKSPLASH, LIGHT FIXTURES, ALL SWITCHES/PLUGS, CUSTOM WINDOW TREAMENTS, FIREPLACE IN BASEMENT, DOORS & TRIM: Move in and enjoy this home with a Community Centre for activities, access to the Nottawasaga Inn for discounted gym and restaurants, golf, close to Walmart, Timmies, Liquor store, Alliston shops, churches, Hwy 27 & 400 (id:61594)
Property Details
|
MLS® Number
|
N13011424 |
|
Property Type
|
Single Family |
|
Community Name
|
Alliston |
|
Amenities Near By
|
Hospital, Golf Nearby |
|
Community Features
|
Pets Allowed With Restrictions, Community Centre |
|
Equipment Type
|
Water Heater |
|
Features
|
Balcony |
|
Parking Space Total
|
4 |
|
Rental Equipment Type
|
Water Heater |
|
Structure
|
Deck |
Building
|
Bathroom Total
|
3 |
|
Bedrooms Above Ground
|
2 |
|
Bedrooms Below Ground
|
1 |
|
Bedrooms Total
|
3 |
|
Age
|
16 To 30 Years |
|
Amenities
|
Fireplace(s) |
|
Appliances
|
Garage Door Opener Remote(s), Dishwasher, Dryer, Garage Door Opener, Washer, Window Coverings |
|
Basement Development
|
Finished |
|
Basement Type
|
N/a (finished) |
|
Construction Style Attachment
|
Detached |
|
Cooling Type
|
Central Air Conditioning |
|
Exterior Finish
|
Brick |
|
Fireplace Present
|
Yes |
|
Fireplace Total
|
2 |
|
Flooring Type
|
Hardwood, Carpeted |
|
Foundation Type
|
Poured Concrete |
|
Heating Fuel
|
Natural Gas |
|
Heating Type
|
Forced Air |
|
Stories Total
|
2 |
|
Size Interior
|
1,400 - 1,599 Ft2 |
|
Type
|
House |
Parking
Land
|
Acreage
|
No |
|
Land Amenities
|
Hospital, Golf Nearby |
|
Landscape Features
|
Lawn Sprinkler |
Rooms
| Level |
Type |
Length |
Width |
Dimensions |
|
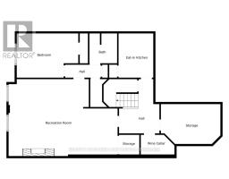
Basement |
Recreational, Games Room |
8.09 m |
5.7 m |
8.09 m x 5.7 m |
|
Basement |
Bedroom 3 |
4.57 m |
3.28 m |
4.57 m x 3.28 m |
|
Basement |
Other |
4.42 m |
2.96 m |
4.42 m x 2.96 m |
|
Main Level |
Living Room |
4.12 m |
2.96 m |
4.12 m x 2.96 m |
|
Main Level |
Dining Room |
3.42 m |
3.35 m |
3.42 m x 3.35 m |
|
Main Level |
Kitchen |
4.28 m |
3.67 m |
4.28 m x 3.67 m |
|
Main Level |
Great Room |
4.32 m |
3.72 m |
4.32 m x 3.72 m |
|
Main Level |
Primary Bedroom |
4.7 m |
3.65 m |
4.7 m x 3.65 m |
|
Main Level |
Laundry Room |
2.15 m |
1.93 m |
2.15 m x 1.93 m |
|
Upper Level |
Bedroom 2 |
4.62 m |
4.37 m |
4.62 m x 4.37 m |
https://www.realtor.ca/real-estate/29619524/1-fortuna-circle-new-tecumseth-alliston-alliston