4 Bedroom
3 Bathroom
1,500 - 2,000 ft2
Raised Bungalow
Fireplace
Central Air Conditioning, Air Exchanger
Forced Air
$1,449,900
Designed from the ground up for multigenerational living, this newly built custom raised bungalow is located in the heart of Pelham, Ontario. 1 Hurricane Road offers two fully functional living spaces that provide both privacy and connection under one roof. Thoughtfully designed with modern comfort, convenience, and flexibility in mind, this home is ideal for families looking to live together without compromise. The open concept main level offers a bright, inviting living space that flows seamlessly into a beautifully designed kitchen featuring a large island, quartz countertops, ample storage, and high end finishes. A patio door leads to a raised deck, perfect for morning coffee, family gatherings, or year round enjoyment. This level includes three bedrooms, including a spacious primary with a private ensuite, along with a stylish four piece bathroom. The main floor family area also features a natural gas fireplace, adding warmth and comfort. The lower level is perfectly suited for extended family or in law living, complete with its own full kitchen featuring a large island and granite countertops that mirror the quality found upstairs. A generous bedroom, a three piece bathroom, and a formal dining area that could easily convert into an additional bedroom provide excellent flexibility. With ground level rear access, this space is filled with natural light and includes a patio slider that opens to a covered patio. A second natural gas fireplace creates a warm and inviting atmosphere. Additional highlights include a deep double car garage with a convenient walk up from the basement, along with a concrete driveway offering ample parking. Located in a highly desirable area, the home offers quick highway access for easy commuting. Pelham is also known for its golf courses and local wineries, delivering a lifestyle that blends relaxation and convenience. (id:61594)
Property Details
|
MLS® Number
|
X12818076 |
|
Property Type
|
Single Family |
|
Community Name
|
662 - Fonthill |
|
Amenities Near By
|
Park, Place Of Worship |
|
Community Features
|
School Bus |
|
Equipment Type
|
Water Heater |
|
Features
|
Sump Pump |
|
Parking Space Total
|
4 |
|
Rental Equipment Type
|
Water Heater |
|
Structure
|
Deck, Patio(s), Shed |
Building
|
Bathroom Total
|
3 |
|
Bedrooms Above Ground
|
3 |
|
Bedrooms Below Ground
|
1 |
|
Bedrooms Total
|
4 |
|
Age
|
0 To 5 Years |
|
Amenities
|
Fireplace(s) |
|
Appliances
|
Garage Door Opener Remote(s), Water Meter, Dryer, Stove, Two Washers, Two Refrigerators |
|
Architectural Style
|
Raised Bungalow |
|
Basement Development
|
Finished |
|
Basement Type
|
N/a (finished) |
|
Construction Style Attachment
|
Detached |
|
Cooling Type
|
Central Air Conditioning, Air Exchanger |
|
Exterior Finish
|
Brick Facing, Vinyl Siding |
|
Fireplace Present
|
Yes |
|
Fireplace Total
|
2 |
|
Foundation Type
|
Poured Concrete |
|
Heating Fuel
|
Natural Gas |
|
Heating Type
|
Forced Air |
|
Stories Total
|
1 |
|
Size Interior
|
1,500 - 2,000 Ft2 |
|
Type
|
House |
|
Utility Water
|
Municipal Water |
Parking
Land
|
Acreage
|
No |
|
Land Amenities
|
Park, Place Of Worship |
|
Sewer
|
Sanitary Sewer |
|
Size Depth
|
120 Ft ,1 In |
|
Size Frontage
|
56 Ft |
|
Size Irregular
|
56 X 120.1 Ft |
|
Size Total Text
|
56 X 120.1 Ft |
|
Zoning Description
|
R1 |
Rooms
| Level |
Type |
Length |
Width |
Dimensions |
|
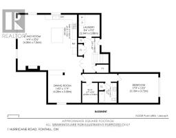
Basement |
Kitchen |
4.12 m |
5.1 m |
4.12 m x 5.1 m |
|
Basement |
Bedroom 4 |
5.18 m |
3.72 m |
5.18 m x 3.72 m |
|
Basement |
Bathroom |
2.3 m |
2.54 m |
2.3 m x 2.54 m |
|
Basement |
Laundry Room |
2.54 m |
2.88 m |
2.54 m x 2.88 m |
|
Basement |
Other |
2.02 m |
2.56 m |
2.02 m x 2.56 m |
|
Basement |
Laundry Room |
2.54 m |
2.88 m |
2.54 m x 2.88 m |
|
Basement |
Living Room |
4.38 m |
7.06 m |
4.38 m x 7.06 m |
|
Basement |
Dining Room |
4.28 m |
3.58 m |
4.28 m x 3.58 m |
|
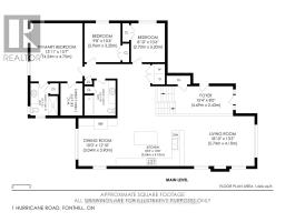
Main Level |
Foyer |
4.69 m |
2.43 m |
4.69 m x 2.43 m |
|
Main Level |
Living Room |
5.74 m |
4.1 m |
5.74 m x 4.1 m |
|
Main Level |
Laundry Room |
2 m |
1 m |
2 m x 1 m |
|
Main Level |
Dining Room |
3.04 m |
3.9 m |
3.04 m x 3.9 m |
|
Main Level |
Kitchen |
5.54 m |
4.1 m |
5.54 m x 4.1 m |
|
Main Level |
Primary Bedroom |
4.24 m |
4.75 m |
4.24 m x 4.75 m |
|
Main Level |
Bedroom 2 |
2.7 m |
3.2 m |
2.7 m x 3.2 m |
|
Main Level |
Bedroom 3 |
2.96 m |
3.2 m |
2.96 m x 3.2 m |
|
Main Level |
Bathroom |
2.54 m |
2.84 m |
2.54 m x 2.84 m |
Utilities
|
Cable
|
Installed |
|
Electricity
|
Installed |
|
Sewer
|
Installed |
https://www.realtor.ca/real-estate/29396777/1-hurricane-road-pelham-fonthill-662-fonthill