2 Bedroom
1 Bathroom
700 - 799 ft2
Central Air Conditioning
Forced Air
$749,000Maintenance, Heat, Common Area Maintenance, Insurance
$693.48 Monthly
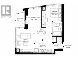
Live in luxury at iconic Lansdowne Park! This bright and beautiful modified 2-bedroom corner unit offers spacious open-concept living with panoramic views of the city and Rideau Canal, while directly overlooking TD Place Stadium, the Great Lawn, and spectacular sunsets. The second bedroom is currently used as a den/office but can easily be converted back to a full bedroom. Features include open-concept kitchen, living, and dining areas, large windows, 9-ft ceilings, and fresh paint throughout. The modern kitchen offers quartz countertops, a large island, and stainless-steel appliances, including a Frigidaire induction range with convection oven (2024) and Frigidaire microwave (2025). Additional highlights include in-unit laundry with full-size Miele washer and dryer (2022), window blinds, underground parking, a storage locker, and a private balcony overlooking the stadium. Residents enjoy outstanding building amenities including concierge service, a fully equipped gym, three stadium lounges for entertaining, an outdoor terrace with barbecues overlooking the Rideau Canal, and a guest suite. The location is exceptional, with Whole Foods, LCBO, GoodLife Fitness, Cineplex, restaurants, coffee shops, the weekly Farmers' Market, annual Christmas Market, Ottawa 67's games, Ottawa Charge games, dog parks, and the Glebe all within a 5-minute walk. Many amenities - including GoodLife, Whole Foods, and the LCBO - offer door-to-door underground access, allowing you to walk to the gym, then pick up groceries and a bottle of wine in the middle of winter without boots or a coat. Just outside your door is the Rideau Canal and its scenic pathways, perfect for year-round activities such as cycling, walking, and skating.Condo fees include heat and air conditioning. Come see this exceptional home! (id:61594)
Property Details
|
MLS® Number
|
X12858082 |
|
Property Type
|
Single Family |
|
Community Name
|
4402 - Glebe |
|
Amenities Near By
|
Park, Public Transit |
|
Community Features
|
Pets Allowed With Restrictions |
|
Features
|
Balcony, Carpet Free, In Suite Laundry |
|
Parking Space Total
|
1 |
Building
|
Bathroom Total
|
1 |
|
Bedrooms Above Ground
|
2 |
|
Bedrooms Total
|
2 |
|
Amenities
|
Security/concierge, Exercise Centre, Party Room, Storage - Locker |
|
Appliances
|
Dishwasher, Dryer, Stove, Washer, Window Coverings, Refrigerator |
|
Basement Type
|
None |
|
Cooling Type
|
Central Air Conditioning |
|
Exterior Finish
|
Concrete, Steel |
|
Fire Protection
|
Monitored Alarm |
|
Heating Fuel
|
Natural Gas |
|
Heating Type
|
Forced Air |
|
Size Interior
|
700 - 799 Ft2 |
|
Type
|
Apartment |
Parking
Land
|
Acreage
|
No |
|
Land Amenities
|
Park, Public Transit |
Rooms
| Level |
Type |
Length |
Width |
Dimensions |
|
Main Level |
Kitchen |
3.68 m |
2.28 m |
3.68 m x 2.28 m |
|
Main Level |
Dining Room |
3.37 m |
2.38 m |
3.37 m x 2.38 m |
|
Main Level |
Living Room |
4.29 m |
3.17 m |
4.29 m x 3.17 m |
|
Main Level |
Primary Bedroom |
2.94 m |
3.07 m |
2.94 m x 3.07 m |
|
Main Level |
Den |
2.87 m |
3.14 m |
2.87 m x 3.14 m |
|
Main Level |
Other |
|
|
Measurements not available |
https://www.realtor.ca/real-estate/29442141/1005-1035-bank-street-ottawa-4402-glebe