3 Bedroom
3 Bathroom
1,500 - 2,000 ft2
Central Air Conditioning
Forced Air
$695,000
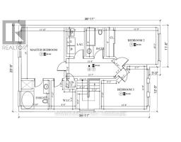
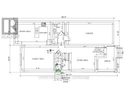
Absolutely a showstopper!!! This stunning, well kept 3-bedroom detached smoke free and pet free home is perfectly situated within walking distance of both Public and Catholic elementary schools and close to the upcoming Blanche E. Williams Community Centre and Park. Boasting 9-foot ceilings , it offers seamless access with a garage entrance directly into the home. The main floor impresses with a separate living room, a spacious family room, and a modern kitchen featuring a breakfast area that opens onto a generously sized fenced backyard. Upstairs, the master bedroom delights with a walk-in closet and an ensuite washroom featuring both a stand-up shower and a luxurious soaker tub. The convenience of second-floor laundry enhances the practicality of this home. Additional standout features include elegant pot lights on the main floor and neutral color paint throughout, culminating in a welcoming and contemporary living environment. (id:61594)
Property Details
|
MLS® Number
|
X12832418 |
|
Property Type
|
Single Family |
|
Equipment Type
|
Water Heater |
|
Parking Space Total
|
3 |
|
Rental Equipment Type
|
Water Heater |
Building
|
Bathroom Total
|
3 |
|
Bedrooms Above Ground
|
3 |
|
Bedrooms Total
|
3 |
|
Appliances
|
Dishwasher, Dryer, Stove, Washer, Refrigerator |
|
Basement Development
|
Unfinished |
|
Basement Type
|
N/a (unfinished) |
|
Construction Style Attachment
|
Detached |
|
Cooling Type
|
Central Air Conditioning |
|
Exterior Finish
|
Vinyl Siding |
|
Foundation Type
|
Concrete |
|
Half Bath Total
|
1 |
|
Heating Fuel
|
Natural Gas |
|
Heating Type
|
Forced Air |
|
Stories Total
|
2 |
|
Size Interior
|
1,500 - 2,000 Ft2 |
|
Type
|
House |
|
Utility Water
|
Municipal Water |
Parking
Land
|
Acreage
|
No |
|
Sewer
|
Sanitary Sewer |
|
Size Depth
|
104 Ft ,6 In |
|
Size Frontage
|
31 Ft ,2 In |
|
Size Irregular
|
31.2 X 104.5 Ft |
|
Size Total Text
|
31.2 X 104.5 Ft |
Rooms
| Level |
Type |
Length |
Width |
Dimensions |
|
Second Level |
Primary Bedroom |
3.58 m |
3.81 m |
3.58 m x 3.81 m |
|
Second Level |
Bedroom 2 |
3.58 m |
3.1 m |
3.58 m x 3.1 m |
|
Second Level |
Bedroom 3 |
4.27 m |
3.38 m |
4.27 m x 3.38 m |
|
Second Level |
Laundry Room |
5 m |
8 m |
5 m x 8 m |
|
Main Level |
Living Room |
3.71 m |
3.73 m |
3.71 m x 3.73 m |
|
Main Level |
Family Room |
3.53 m |
4.29 m |
3.53 m x 4.29 m |
|
Main Level |
Eating Area |
3.02 m |
2.57 m |
3.02 m x 2.57 m |
|
Main Level |
Kitchen |
3.15 m |
2.59 m |
3.15 m x 2.59 m |
https://www.realtor.ca/real-estate/29413141/101-warner-lane-brantford