2 Bedroom
2 Bathroom
1,500 - 2,000 ft2
Bungalow
Central Air Conditioning
Forced Air
$839,988
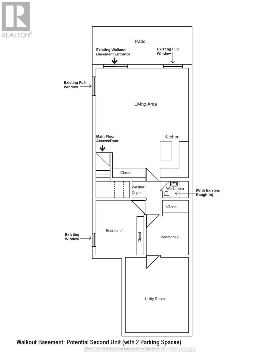
Absolutely Stunning Sunvale "Bristol" Model Bungalow Located In The Highly Desirable West End Of Orangeville, Close To Top-Rated Schools, Parks, Recreation Centre-Alder Arena, Conservation Park, Trail, Waterpark, Public Transit, Shopping, And Dining. This Beautifully Renovated Home Features A Bright Open-Concept Layout With Vaulted Ceilings In The Living And Dining Areas, Enhanced By Double Skylights. The Upgraded Kitchen Showcases Quartz Countertops, White Cabinetry, Stainless Steel Appliances, And A Brand-New Dishwasher. The Spacious Master Bedroom Includes A Walk-In Closet And A Modern 3-Piece Ensuite With Quartz Countertop And Standing Shower, While The Second Bedroom Offers A Double-Door Closet And Access To An Upgraded 4-Piece Main Bath With Quartz Finishes. Enjoy The Convenience Of Main-Floor Laundry And Direct Garage Access. Spacious Finished (Partially) Walkout Basement with Large Space of Unfinished - 474 Sq. Ft. - Available to add Kitchen, Bath. The Entire Lower Level can be converted into a Two Bedrooms Second Dwelling -Perfect For An Extended Family Or Potential Rental Income. Additional Features Include White Flooring Throughout, A Garage Door Opener With Remote, And A Water Softener (Not Connected). Above Grade Finished Area consists of 1098 Sq.Ft on Main Level PLUS 478 Sq. Ft. Lower Level. A Move-In-Ready Home Offering Style & Space. True Gem - Must See!! Walkout Basement - Potential Second Unit (With 2 Parking Spaces) (id:61594)
Property Details
|
MLS® Number
|
W12957856 |
|
Property Type
|
Single Family |
|
Community Name
|
Orangeville |
|
Amenities Near By
|
Park, Schools, Place Of Worship |
|
Community Features
|
Community Centre |
|
Equipment Type
|
Water Heater |
|
Features
|
Conservation/green Belt |
|
Parking Space Total
|
5 |
|
Rental Equipment Type
|
Water Heater |
|
Structure
|
Deck |
|
View Type
|
View |
Building
|
Bathroom Total
|
2 |
|
Bedrooms Above Ground
|
2 |
|
Bedrooms Total
|
2 |
|
Age
|
16 To 30 Years |
|
Appliances
|
All, Dishwasher, Dryer, Hood Fan, Stove, Washer, Water Softener, Refrigerator |
|
Architectural Style
|
Bungalow |
|
Basement Development
|
Partially Finished |
|
Basement Features
|
Walk Out |
|
Basement Type
|
N/a (partially Finished), N/a |
|
Construction Style Attachment
|
Detached |
|
Cooling Type
|
Central Air Conditioning |
|
Exterior Finish
|
Brick |
|
Fire Protection
|
Smoke Detectors |
|
Flooring Type
|
Laminate, Carpeted |
|
Foundation Type
|
Poured Concrete |
|
Heating Fuel
|
Natural Gas |
|
Heating Type
|
Forced Air |
|
Stories Total
|
1 |
|
Size Interior
|
1,500 - 2,000 Ft2 |
|
Type
|
House |
|
Utility Water
|
Municipal Water, Unknown |
Parking
Land
|
Acreage
|
No |
|
Land Amenities
|
Park, Schools, Place Of Worship |
|
Sewer
|
Sanitary Sewer |
|
Size Depth
|
115 Ft ,9 In |
|
Size Frontage
|
32 Ft |
|
Size Irregular
|
32 X 115.8 Ft ; Year Built: 2001 |
|
Size Total Text
|
32 X 115.8 Ft ; Year Built: 2001 |
Rooms
| Level |
Type |
Length |
Width |
Dimensions |
|
Lower Level |
Family Room |
6.73 m |
6.37 m |
6.73 m x 6.37 m |
|
Main Level |
Kitchen |
2.83 m |
2.68 m |
2.83 m x 2.68 m |
|
Main Level |
Living Room |
4.99 m |
2.74 m |
4.99 m x 2.74 m |
|
Main Level |
Dining Room |
3.81 m |
2.68 m |
3.81 m x 2.68 m |
|
Main Level |
Primary Bedroom |
4.63 m |
3.59 m |
4.63 m x 3.59 m |
|
Main Level |
Bedroom 2 |
3.13 m |
2.56 m |
3.13 m x 2.56 m |
|
Main Level |
Laundry Room |
2.74 m |
1.25 m |
2.74 m x 1.25 m |
Utilities
|
Cable
|
Installed |
|
Electricity
|
Installed |
|
Sewer
|
Installed |
https://www.realtor.ca/real-estate/29558677/103-biscayne-crescent-orangeville-orangeville