2 Bedroom
1 Bathroom
1,100 - 1,500 ft2
Bungalow
None
Other
$164,900
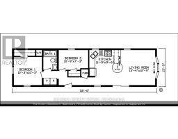
Welcome to your Muskoka getaway in the sought-after 4 Season section of South Muskoka Resort in Gravenhurst! This well-maintained 2019 Huron model offers 2 bedrooms, 1 bathroom, and approximately 715 sqft of comfortable, turn-key living-perfect for year-round enjoyment or a relaxing weekend escape. Step inside to a bright and inviting interior featuring a cozy gas stove, with most furnishings included (excluding tan leather recliner). Recent updates include a new fridge (2024), an owned hot water tank and New Roof (2025) for added peace of mind. Set on a concrete slab (2019), the property offers a private driveway with parking for up to 3 vehicles, a storage shed, and a charming fire pit-ideal for enjoying quiet evenings surrounded by nature. With friendly neighbours and a peaceful setting, this is the perfect place to unwind.Located just under 5 minutes from public dock access at Severn Bridge on the Severn River, you'll have easy access to boating, fishing, and all that Muskoka has to offer.Monthly fees are $600 ($550 + $50), with propane tank rental at just $60/year. A fantastic opportunity for low-maintenance living or your own Muskoka retreat! (id:61594)
Property Details
|
MLS® Number
|
X12986384 |
|
Property Type
|
Single Family |
|
Community Name
|
Morrison |
|
Equipment Type
|
Propane Tank |
|
Parking Space Total
|
2 |
|
Rental Equipment Type
|
Propane Tank |
|
Structure
|
Shed |
Building
|
Bathroom Total
|
1 |
|
Bedrooms Above Ground
|
2 |
|
Bedrooms Total
|
2 |
|
Appliances
|
Dishwasher, Dryer, Stove, Washer, Refrigerator |
|
Architectural Style
|
Bungalow |
|
Basement Type
|
None |
|
Cooling Type
|
None |
|
Exterior Finish
|
Vinyl Siding |
|
Heating Type
|
Other |
|
Stories Total
|
1 |
|
Size Interior
|
1,100 - 1,500 Ft2 |
|
Type
|
Mobile Home |
Parking
Land
|
Acreage
|
No |
|
Sewer
|
Septic System |
|
Zoning Description
|
Mh |
Rooms
| Level |
Type |
Length |
Width |
Dimensions |
|
Main Level |
Kitchen |
3.48 m |
2.89 m |
3.48 m x 2.89 m |
|
Main Level |
Living Room |
3.88 m |
4.06 m |
3.88 m x 4.06 m |
|
Main Level |
Bedroom 2 |
3.27 m |
2.21 m |
3.27 m x 2.21 m |
|
Main Level |
Primary Bedroom |
3.12 m |
3.12 m |
3.12 m x 3.12 m |
Utilities
https://www.realtor.ca/real-estate/29591206/1050-4-seasons-road-gravenhurst-morrison-morrison