Maintenance, Insurance, Landscaping, Property Management, Water, Parking
$450 MonthlyFor more info on this property, please click the Brochure button. Location! Location! This stunning 3-bedroom, 1.5 bath townhome must be seen! Perfectly located minutes from Lincoln Alexander and Red Hill Valley parkways! Walking distance to all amenities, including recreational center, schools, churches, parks, trails, and public transportation. Upgrades include but are not limited to: kitchen, bathroom, vanities, laminate floors, solid oak stair treads, front and interior doors, windows, freshly painted walls, and modern light fixtures. All kitchen appliances are brand new. The large living room features a patio door that allows for a natural flow out to the rear, fenced yard. The kitchen has a door to a cozy little balcony with an amazing open space of surrounding view to enjoy coffee while sitting, welcoming the sunshine. Don't miss the opportunity to make this beautiful townhouse your new home! (id:61594)
| MLS® Number | 40803059 |
| Property Type | Single Family |
| Amenities Near By | Park, Playground, Public Transit, Schools |
| Communication Type | High Speed Internet |
| Community Features | Quiet Area, Community Centre, School Bus |
| Equipment Type | Water Heater |
| Features | Balcony, Paved Driveway |
| Parking Space Total | 2 |
| Rental Equipment Type | Water Heater |
| Bathroom Total | 2 |
| Bedrooms Above Ground | 3 |
| Bedrooms Total | 3 |
| Appliances | Dishwasher, Dryer, Refrigerator, Stove, Washer, Microwave Built-in, Window Coverings |
| Architectural Style | 2 Level |
| Basement Development | Finished |
| Basement Type | Full (finished) |
| Construction Style Attachment | Attached |
| Cooling Type | Central Air Conditioning |
| Exterior Finish | Brick Veneer |
| Fire Protection | Smoke Detectors |
| Fireplace Present | Yes |
| Fireplace Total | 1 |
| Half Bath Total | 1 |
| Heating Fuel | Natural Gas |
| Heating Type | Forced Air |
| Stories Total | 2 |
| Size Interior | 1,380 Ft2 |
| Type | Row / Townhouse |
| Utility Water | Municipal Water |
| Attached Garage |
| Access Type | Road Access, Highway Access, Highway Nearby |
| Acreage | No |
| Fence Type | Partially Fenced |
| Land Amenities | Park, Playground, Public Transit, Schools |
| Sewer | Municipal Sewage System |
| Size Total Text | Unknown |
| Zoning Description | Rm3 |
| Level | Type | Length | Width | Dimensions |
|---|---|---|---|---|
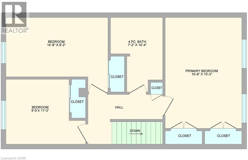
| Second Level | 4pc Bathroom | 7'2'' x 10'4'' | ||
| Second Level | Bedroom | 9'0'' x 11'3'' | ||
| Second Level | Bedroom | 14'8'' x 8'2'' | ||
| Second Level | Primary Bedroom | 10'8'' x 15'3'' | ||
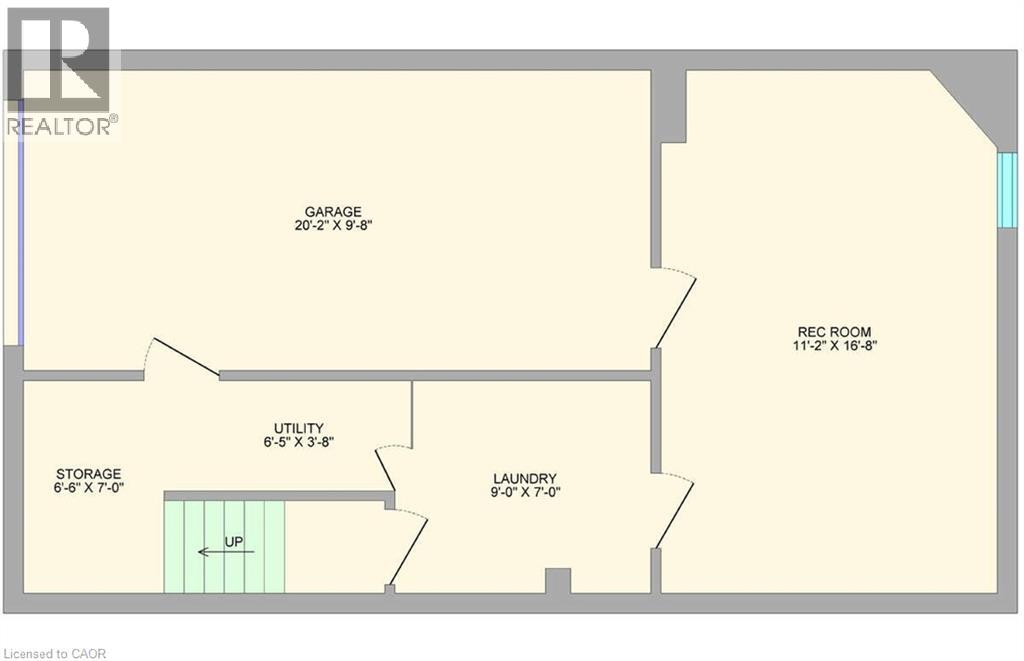
| Basement | Storage | 6'6'' x 7'0'' | ||
| Basement | Utility Room | 6'5'' x 3'8'' | ||
| Basement | Laundry Room | 9'0'' x 7'0'' | ||
| Basement | Recreation Room | 11'2'' x 16'8'' | ||
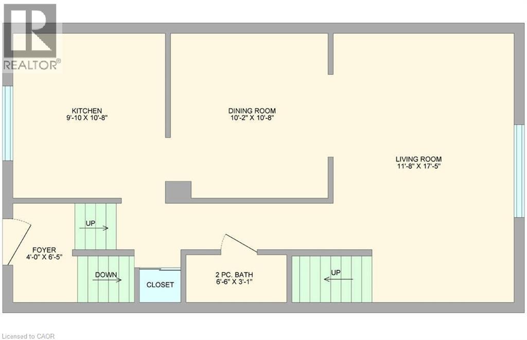
| Main Level | Foyer | 4'0'' x 6'5'' | ||
| Main Level | 2pc Bathroom | 6'6'' x 3'1'' | ||
| Main Level | Kitchen | 9'10'' x 10'8'' | ||
| Main Level | Dining Room | 10'2'' x 10'8'' | ||
| Main Level | Living Room | 11'8'' x 17'5'' |
| Cable | Available |
| Electricity | Available |
| Natural Gas | Available |
| Telephone | Available |
https://www.realtor.ca/real-estate/29325069/1115-paramount-drive-unit-58-stoney-creek
Contact us for more information