5 Bedroom
2 Bathroom
1,500 - 2,000 ft2
Fireplace
Central Air Conditioning
Forced Air
$799,999
Tucked into one of Bracebridge's most tranquil, established neighbourhoods, this exceptional five level side split delivers the perfect balance of refined design, functional space, and family focused versatility. Bathed in natural light, the heart of the home is a beautifully reimagined kitchen featuring quartz countertops, premium Bosch and Café appliances, and a seamless open-concept layout that flows into the dining area. Step out to the brand new deck (2025), an ideal setting for morning coffee or effortless entertaining surrounded by Muskoka's natural beauty. The inviting living room offers a warm, relaxed atmosphere with a cozy gas fireplace and peaceful views, perfect for unwinding year round. Upstairs, you'll find generously sized bedrooms with ample closet space, along with a stylishly updated five-piece main bath (2024). The upper-level loft suite is a true retreat, offering privacy and a luxurious ensuite (2024) the perfect escape. The grade level enhances everyday living with direct garage access, a flexible home office or fifth bedroom, and a dedicated laundry room. The finished lower level extends your living space with a spacious rec room, additional storage, and a cold cellar providing both comfort and practicality. Designed with flexibility in mind, this home offers excellent potential for an in-law suite or separate living quarters and is ideal for busy households or multigenerational needs. A durable metal roof (2022) adds long term value and peace of mind. Move in ready and meticulously updated with more than 2500 sqft of finished living space, this is your opportunity to embrace the best of Muskoka living where small town charm meets modern comfort. (id:61594)
Open House
This property has open houses!
Starts at:
11:00 am
Ends at:
1:00 pm
Property Details
|
MLS® Number
|
X12918318 |
|
Property Type
|
Single Family |
|
Community Name
|
Monck (Bracebridge) |
|
Amenities Near By
|
Beach, Hospital, Golf Nearby, Public Transit |
|
Features
|
Conservation/green Belt |
|
Parking Space Total
|
7 |
|
Structure
|
Shed |
Building
|
Bathroom Total
|
2 |
|
Bedrooms Above Ground
|
4 |
|
Bedrooms Below Ground
|
1 |
|
Bedrooms Total
|
5 |
|
Age
|
31 To 50 Years |
|
Amenities
|
Fireplace(s) |
|
Appliances
|
Dishwasher, Dryer, Garage Door Opener, Stove, Washer, Refrigerator |
|
Basement Development
|
Partially Finished |
|
Basement Type
|
N/a (partially Finished) |
|
Construction Status
|
Insulation Upgraded |
|
Construction Style Attachment
|
Detached |
|
Construction Style Split Level
|
Sidesplit |
|
Cooling Type
|
Central Air Conditioning |
|
Exterior Finish
|
Brick, Vinyl Siding |
|
Fireplace Present
|
Yes |
|
Fireplace Total
|
1 |
|
Flooring Type
|
Hardwood |
|
Foundation Type
|
Block |
|
Heating Fuel
|
Natural Gas |
|
Heating Type
|
Forced Air |
|
Size Interior
|
1,500 - 2,000 Ft2 |
|
Type
|
House |
|
Utility Water
|
Municipal Water |
Parking
Land
|
Acreage
|
No |
|
Land Amenities
|
Beach, Hospital, Golf Nearby, Public Transit |
|
Sewer
|
Sanitary Sewer |
|
Size Depth
|
117 Ft ,4 In |
|
Size Frontage
|
99 Ft ,7 In |
|
Size Irregular
|
99.6 X 117.4 Ft |
|
Size Total Text
|
99.6 X 117.4 Ft |
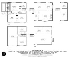
Rooms
| Level |
Type |
Length |
Width |
Dimensions |
|
Basement |
Recreational, Games Room |
8.4 m |
4.5 m |
8.4 m x 4.5 m |
|
Lower Level |
Office |
3.7 m |
4 m |
3.7 m x 4 m |
|
Main Level |
Kitchen |
4.9 m |
3.6 m |
4.9 m x 3.6 m |
|
Main Level |
Dining Room |
3.3 m |
3.6 m |
3.3 m x 3.6 m |
|
Main Level |
Living Room |
6.4 m |
4.6 m |
6.4 m x 4.6 m |
|
Upper Level |
Bedroom 4 |
3.2 m |
5.5 m |
3.2 m x 5.5 m |
|
In Between |
Primary Bedroom |
4.43 m |
3.6 m |
4.43 m x 3.6 m |
|
In Between |
Bedroom 2 |
4.51 m |
3.4 m |
4.51 m x 3.4 m |
|
In Between |
Bedroom 3 |
3.7 m |
3.93 m |
3.7 m x 3.93 m |
https://www.realtor.ca/real-estate/29513051/18-westvale-drive-bracebridge-monck-bracebridge-monck-bracebridge