2 Bedroom
2 Bathroom
1,200 - 1,399 ft2
Fireplace
Wall Unit
Baseboard Heaters
$364,900Maintenance, Common Area Maintenance, Insurance, Water, Parking
$438 Monthly
Step into a standout opportunity in the heart of Hunt Club-where location, lifestyle, and smart design come together to set this stacked condo townhouse apart from the rest. Perfectly positioned within walking distance to public transit, shopping, and green space including Elizabeth Manley Park, Winterwood Park, and Conroy Pit, this home offers the convenience today's buyers are searching for. From the charming covered front porch to the thoughtfully designed interior, every detail has been curated for comfort and everyday ease. The main level welcomes you with a spacious foyer and flows into a bright, open-concept layout filled with natural light, featuring carpet-free living with hardwood flooring and a hardwood staircase for a clean, modern feel. The kitchen is both stylish and functional, offering generous cabinetry, pot drawers, a breakfast bar, and all appliances included, seamlessly connecting to the inviting living room highlighted by a cozy fireplace and patio doors leading to your outdoor space-perfect for summer BBQs and relaxed evenings. A convenient 2-piece bathroom completes this level. Downstairs, you'll find a well-designed retreat with a spacious South-facing primary bedroom offering abundant closet space, a versatile second bedroom, and a full 4-piece bathroom. In-suite laundry, a utility room, and additional storage add to the home's practicality. Step outside to enjoy a patio area ideal for entertaining or unwinding, along with one dedicated parking space. Bright, modern, and exceptionally well located, this home delivers incredible value in a competitive market-an ideal choice for buyers looking to secure a move-in ready property with lifestyle appeal and long-term potential. (id:61594)
Property Details
|
MLS® Number
|
X13007972 |
|
Property Type
|
Single Family |
|
Community Name
|
3808 - Hunt Club Park |
|
Amenities Near By
|
Park, Public Transit, Schools, Place Of Worship |
|
Community Features
|
Pets Allowed With Restrictions, Community Centre, School Bus |
|
Equipment Type
|
Water Heater |
|
Features
|
Carpet Free, In Suite Laundry |
|
Parking Space Total
|
1 |
|
Rental Equipment Type
|
Water Heater |
|
Structure
|
Deck, Patio(s), Porch |
Building
|
Bathroom Total
|
2 |
|
Bedrooms Below Ground
|
2 |
|
Bedrooms Total
|
2 |
|
Appliances
|
Dishwasher, Dryer, Alarm System, Stove, Washer, Window Coverings, Refrigerator |
|
Basement Development
|
Finished |
|
Basement Type
|
Full (finished) |
|
Cooling Type
|
Wall Unit |
|
Exterior Finish
|
Brick, Vinyl Siding |
|
Fireplace Present
|
Yes |
|
Fireplace Type
|
Woodstove |
|
Foundation Type
|
Poured Concrete |
|
Half Bath Total
|
1 |
|
Heating Fuel
|
Electric |
|
Heating Type
|
Baseboard Heaters |
|
Size Interior
|
1,200 - 1,399 Ft2 |
|
Type
|
Row / Townhouse |
Parking
Land
|
Acreage
|
No |
|
Land Amenities
|
Park, Public Transit, Schools, Place Of Worship |
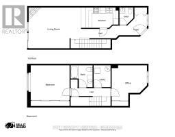
Rooms
| Level |
Type |
Length |
Width |
Dimensions |
|
Lower Level |
Primary Bedroom |
4.15 m |
3.69 m |
4.15 m x 3.69 m |
|
Lower Level |
Bedroom |
3.77 m |
3.73 m |
3.77 m x 3.73 m |
|
Lower Level |
Bathroom |
2.35 m |
2.32 m |
2.35 m x 2.32 m |
|
Lower Level |
Utility Room |
1.81 m |
2.32 m |
1.81 m x 2.32 m |
|
Main Level |
Foyer |
3.03 m |
2.24 m |
3.03 m x 2.24 m |
|
Main Level |
Kitchen |
3.98 m |
2.16 m |
3.98 m x 2.16 m |
|
Main Level |
Living Room |
5.58 m |
4.33 m |
5.58 m x 4.33 m |
|
Main Level |
Bathroom |
1.49 m |
1.82 m |
1.49 m x 1.82 m |
https://www.realtor.ca/real-estate/29615366/20-458-briston-private-ottawa-3808-hunt-club-park