2 Bedroom
2 Bathroom
1,405 ft2
Raised Bungalow
Fireplace
Ductless
Other
$574,000
Experience life in the popular lakeside town of Port Dover, where a stroll along the beach, a show at the Lighthouse Theatre, dining at local restaurants, and shopping at boutique shops are all just steps from your front door. You’ll feel effortlessly connected, with major centres and cities only a short drive away—perfect for visiting friends and family, commuting for work, or enjoying entertainment and other needs. This modern residence sits in an ideal spot just two blocks from Lake Erie and offers a bright, efficient design. On the main floor, you’ll enter into an open-concept kitchen and living area that flow together in a warm, inviting layout. Large windows fill the space with natural light, guiding you to a front balcony where you can unwind and let the day fade away. Continuing down the hall, you’ll find a 4-piece bathroom with ensuite access to the primary bedroom. The generous primary bedroom opens to a smaller versatile space that can function as a home office or cozy den, plus a private balcony with rear yard views. A closet with stackable laundry completes the main floor. The lower level, accessed via a separate entrance, adds significant flexibility for family & guests. It features a kitchen, a 4-piece bathroom, ample closet storage, large windows, laundry facilities, and a spacious studio-style living area. The exterior makes a statement with bold red vinyl siding and a dark metal roof. The fully fenced yard is beautifully landscaped and provides a shaded, quiet retreat at the rear, with an open patio area and additional side parking for convenience. A garden/storage shed is included, offering extra storage for tools and toys, and the approach from the street features a double-wide paved space that will comfortably accommodate two vehicles. This home is a standout “one-of-a-kind” with lots of possibilities, located in a great community and ready for your personal inspection. Reach out today! (id:61594)
Property Details
|
MLS® Number
|
40807629 |
|
Property Type
|
Single Family |
|
Amenities Near By
|
Beach, Golf Nearby, Marina, Park, Place Of Worship, Playground, Schools |
|
Community Features
|
Community Centre |
|
Equipment Type
|
None |
|
Features
|
Paved Driveway, Sump Pump |
|
Parking Space Total
|
2 |
|
Rental Equipment Type
|
None |
|
Structure
|
Shed |
Building
|
Bathroom Total
|
2 |
|
Bedrooms Above Ground
|
1 |
|
Bedrooms Below Ground
|
1 |
|
Bedrooms Total
|
2 |
|
Appliances
|
Dishwasher, Dryer, Refrigerator, Stove, Washer, Microwave Built-in, Window Coverings |
|
Architectural Style
|
Raised Bungalow |
|
Basement Development
|
Finished |
|
Basement Type
|
Full (finished) |
|
Constructed Date
|
2018 |
|
Construction Style Attachment
|
Detached |
|
Cooling Type
|
Ductless |
|
Exterior Finish
|
Vinyl Siding |
|
Fireplace Fuel
|
Electric |
|
Fireplace Present
|
Yes |
|
Fireplace Total
|
1 |
|
Fireplace Type
|
Other - See Remarks |
|
Fixture
|
Ceiling Fans |
|
Foundation Type
|
Poured Concrete |
|
Heating Fuel
|
Electric |
|
Heating Type
|
Other |
|
Stories Total
|
1 |
|
Size Interior
|
1,405 Ft2 |
|
Type
|
House |
|
Utility Water
|
Municipal Water |
Land
|
Access Type
|
Road Access |
|
Acreage
|
No |
|
Fence Type
|
Fence |
|
Land Amenities
|
Beach, Golf Nearby, Marina, Park, Place Of Worship, Playground, Schools |
|
Sewer
|
Municipal Sewage System |
|
Size Depth
|
100 Ft |
|
Size Frontage
|
40 Ft |
|
Size Irregular
|
0.091 |
|
Size Total
|
0.091 Ac|under 1/2 Acre |
|
Size Total Text
|
0.091 Ac|under 1/2 Acre |
|
Zoning Description
|
R1-a |
Rooms
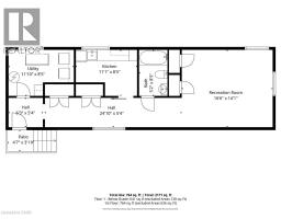
| Level |
Type |
Length |
Width |
Dimensions |
|
Basement |
Bedroom |
|
|
16'2'' x 13'0'' |
|
Basement |
4pc Bathroom |
|
|
5'0'' x 7'10'' |
|
Basement |
Kitchen |
|
|
5'9'' x 11'0'' |
|
Basement |
Utility Room |
|
|
8'2'' x 11'7'' |
|
Basement |
Foyer |
|
|
5'4'' x 4'7'' |
|
Main Level |
4pc Bathroom |
|
|
4'11'' x 8'2'' |
|
Main Level |
Other |
|
|
10'10'' x 8'10'' |
|
Main Level |
Primary Bedroom |
|
|
11'0'' x 13'8'' |
|
Main Level |
Kitchen |
|
|
14'4'' x 16'7'' |
Utilities
|
Electricity
|
Available |
|
Natural Gas
|
Available |
https://www.realtor.ca/real-estate/29411863/2017-erie-street-port-dover