3 Bedroom
2 Bathroom
1,200 - 1,399 ft2
Indoor Pool
Central Air Conditioning
Heat Pump
Waterfront
$379,900Maintenance, Water
$1,044 Monthly
Rarely available 3-bedroom condo in Northwest One, over 1,200 sq ft, in a lifestyle building with a genuine community feel and amenities people actually use. Large west-facing windows keep the unit bright, and the layout is straightforward and functional. The updated kitchen has stainless steel appliances and opens into a proper dining area and spacious living room. Two of the three bedrooms have balcony access, as does the living room. The primary suite has a walk-in closet and a full ensuite with an updated vanity and stand-up shower. The other two bedrooms are well-sized with good closet space, and there's a second full bath, in-unit storage, and underground parking. The building has more going on than most: indoor saltwater pool, gym, saunas, party room, hobby and workshop space, tennis courts, outdoor track, BBQ area, billiards, ping pong, library, and a guest suite. Visitor parking is ample. The location is hard to beat: you're in Britannia, steps from the Ottawa River, NCC pathways, and the Britannia Conservation Area, which means Mud Lake, trails, boardwalks, and water views practically out your door. Britannia Beach is close, as are Farm Boy, Britannia Coffeehouse, Beachcombers Microcreamery, and the off-leash dog park. Minutes to Bayshore, Lincoln Fields, and the Queensway. Downtown is about 15 minutes away. People tend to stay in this building for a long time because what else could you need? If you need the space and don't want to give up the location, this is worth a look. (id:61594)
Property Details
|
MLS® Number
|
X13009998 |
|
Property Type
|
Single Family |
|
Community Name
|
6102 - Britannia |
|
Amenities Near By
|
Beach, Marina, Public Transit |
|
Community Features
|
Pets Allowed With Restrictions, Community Centre |
|
Features
|
Conservation/green Belt, Lighting, Wheelchair Access, Balcony |
|
Parking Space Total
|
1 |
|
Pool Type
|
Indoor Pool |
|
Structure
|
Tennis Court |
|
Water Front Type
|
Waterfront |
Building
|
Bathroom Total
|
2 |
|
Bedrooms Above Ground
|
3 |
|
Bedrooms Total
|
3 |
|
Amenities
|
Exercise Centre, Recreation Centre, Party Room, Visitor Parking |
|
Appliances
|
Blinds, Dishwasher, Hood Fan, Microwave, Stove, Refrigerator |
|
Basement Type
|
None |
|
Cooling Type
|
Central Air Conditioning |
|
Exterior Finish
|
Concrete |
|
Fire Protection
|
Controlled Entry |
|
Flooring Type
|
Parquet |
|
Heating Fuel
|
Electric |
|
Heating Type
|
Heat Pump |
|
Size Interior
|
1,200 - 1,399 Ft2 |
|
Type
|
Apartment |
Parking
Land
|
Acreage
|
No |
|
Land Amenities
|
Beach, Marina, Public Transit |
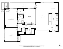
Rooms
| Level |
Type |
Length |
Width |
Dimensions |
|
Main Level |
Living Room |
3.39 m |
7.19 m |
3.39 m x 7.19 m |
|
Main Level |
Dining Room |
2.55 m |
2.73 m |
2.55 m x 2.73 m |
|
Main Level |
Kitchen |
2.44 m |
3.03 m |
2.44 m x 3.03 m |
|
Main Level |
Primary Bedroom |
3.32 m |
4.96 m |
3.32 m x 4.96 m |
|
Main Level |
Bathroom |
1.68 m |
2.33 m |
1.68 m x 2.33 m |
|
Main Level |
Bedroom 2 |
3.05 m |
4.18 m |
3.05 m x 4.18 m |
|
Main Level |
Bedroom 3 |
3.32 m |
3.71 m |
3.32 m x 3.71 m |
|
Main Level |
Bathroom |
2.24 m |
1.5 m |
2.24 m x 1.5 m |
|
Main Level |
Foyer |
1.89 m |
1.6 m |
1.89 m x 1.6 m |
https://www.realtor.ca/real-estate/29617945/207-265-poulin-avenue-ottawa-6102-britannia