4 Bedroom
4 Bathroom
1,500 - 2,000 ft2
Fireplace
Central Air Conditioning
Forced Air
$735,000
Welcome to Ilderton! This beautifully maintained two-storey home at 22 Periwinkle Dr is the perfect fit for a growing family seeking excellent value and a strong sense of community. The main floor features a spacious family room anchored by a cozy gas fireplace, flowing into a refreshed kitchen with newly painted cabinets, new pulls, updated countertops (2025), and custom shelving in the pantry. The bright eating area overlooks the deep backyard, complete with a 10 x 10 foot shed and gazebo. Upstairs, you'll find four generous bedrooms, including a primary suite with vaulted ceiling, walk-in closet and a luxurious 5-piece ensuite featuring a soaker tub. The finished lower level adds valuable living space with a large recreation room featuring a wet-bar and an additional bathroom. Enjoy summer days on the back deck (2020) overlooking the fully fenced yard. Peace of mind comes standard with a newer roof (2022) and a brand-new furnace and AC (January 2026, rented).Experience the best of Middlesex Centre with local shops, restaurants, and the arena / community centre just minutes away. Steps from Deer Haven Optimist Park, with the convenience of London just a short drive away. Your family's Ilderton lifestyle starts here! (id:61594)
Property Details
|
MLS® Number
|
X12947524 |
|
Property Type
|
Single Family |
|
Community Name
|
Ilderton |
|
Equipment Type
|
Water Heater, Furnace |
|
Features
|
Sump Pump |
|
Parking Space Total
|
6 |
|
Rental Equipment Type
|
Water Heater, Furnace |
|
Structure
|
Deck, Porch, Shed |
Building
|
Bathroom Total
|
4 |
|
Bedrooms Above Ground
|
4 |
|
Bedrooms Total
|
4 |
|
Age
|
16 To 30 Years |
|
Amenities
|
Fireplace(s) |
|
Appliances
|
Central Vacuum, Dishwasher, Dryer, Microwave, Play Structure, Stove, Washer, Refrigerator |
|
Basement Development
|
Finished |
|
Basement Type
|
Full (finished) |
|
Construction Style Attachment
|
Detached |
|
Cooling Type
|
Central Air Conditioning |
|
Exterior Finish
|
Brick, Vinyl Siding |
|
Fire Protection
|
Smoke Detectors |
|
Fireplace Present
|
Yes |
|
Fireplace Total
|
1 |
|
Foundation Type
|
Concrete |
|
Half Bath Total
|
1 |
|
Heating Fuel
|
Natural Gas |
|
Heating Type
|
Forced Air |
|
Stories Total
|
2 |
|
Size Interior
|
1,500 - 2,000 Ft2 |
|
Type
|
House |
|
Utility Water
|
Municipal Water |
Parking
Land
|
Acreage
|
No |
|
Sewer
|
Sanitary Sewer |
|
Size Depth
|
120 Ft ,1 In |
|
Size Frontage
|
50 Ft ,4 In |
|
Size Irregular
|
50.4 X 120.1 Ft |
|
Size Total Text
|
50.4 X 120.1 Ft |
Rooms
| Level |
Type |
Length |
Width |
Dimensions |
|
Second Level |
Bathroom |
3.32 m |
1.47 m |
3.32 m x 1.47 m |
|
Second Level |
Bathroom |
3.7 m |
2.9 m |
3.7 m x 2.9 m |
|
Second Level |
Bedroom |
3.7 m |
5.21 m |
3.7 m x 5.21 m |
|
Second Level |
Bedroom 2 |
3.91 m |
3.02 m |
3.91 m x 3.02 m |
|
Second Level |
Bedroom 3 |
3.84 m |
2.78 m |
3.84 m x 2.78 m |
|
Second Level |
Bedroom 4 |
3.37 m |
3.89 m |
3.37 m x 3.89 m |
|
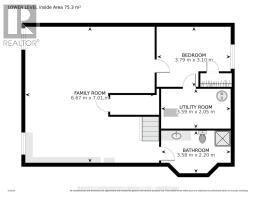
Basement |
Den |
3.79 m |
3.1 m |
3.79 m x 3.1 m |
|
Basement |
Utility Room |
3.59 m |
2.05 m |
3.59 m x 2.05 m |
|
Basement |
Bathroom |
3.58 m |
2.2 m |
3.58 m x 2.2 m |
|
Basement |
Family Room |
6.67 m |
7.01 m |
6.67 m x 7.01 m |
|
Main Level |
Foyer |
2.27 m |
2.63 m |
2.27 m x 2.63 m |
|
Main Level |
Dining Room |
3.54 m |
4.25 m |
3.54 m x 4.25 m |
|
Main Level |
Living Room |
4.08 m |
4.63 m |
4.08 m x 4.63 m |
|
Main Level |
Eating Area |
2.81 m |
4.42 m |
2.81 m x 4.42 m |
|
Main Level |
Laundry Room |
2.13 m |
2.65 m |
2.13 m x 2.65 m |
|
Main Level |
Bathroom |
2.56 m |
0.81 m |
2.56 m x 0.81 m |
https://www.realtor.ca/real-estate/29546375/22-periwinkle-drive-middlesex-centre-ilderton-ilderton