3 Bedroom
3 Bathroom
2,000 - 2,500 ft2
Fireplace
Central Air Conditioning
Forced Air
Landscaped
$848,000
Welcome to this beautifully upgraded (too many to list) & designed Claridge Oslo model set on a premium (backyard) 50ft wide lot in the heart of Riverside South. Meticulously maintained home, by the original owners, offers extensive builder upgrades & thoughtful owner improvements, a true turn-key experience. Step inside to 9ft ceilings, rich hwd & a bright, functional layout for everyday living & entertaining. Living & dining areas filled w/ natural light from windows at the side & rear, while the separate great rm feat. gas fplc w/ stone surround, solid wood mantle & added pot lights for an, inviting atmosphere. The upgraded kitchen is stylish & functional & offers solid maple cabinetry w/ crown moulding, granite countertops, lg L-shaped island w/ breakfast bar seating (4), built-in microwave, extended pantry wall & SS appl. incl. 2026 gas range/DW & pro-style hood fan. Patio drs provide direct access to the fully PVC fenced backyard, complete w/ patio ,storage sheds & plenty of space to relax or entertain outdoors. The hwd staircase leads to the 2nd lvl w/ 3 spacious bds. The primary retreat offers oversized windows, a WIC w/ built-in shelving & a 5pc ensuite feat. dual vanity, soaker tub & an enlarged glass shower w/ tile surround & waterproofing system. Two add'l bds offer generous closet space & a full bath, while an oversized linen closet adds everyday practicality. The LL offers lg egress windows & excellent potential for future finishing w/ a rough-in for a bath, dedicated laundry area, convenient cold storage & ample room to customize to your needs. Notable feat. incl. A/C, furnace humidifier, on-demand hot water, alarm system, central vac + accessories, insulated & finished dbl garage w/ overhead storage, PVC fence, updated lighting, fresh paint, Stove + Dishwasher (2026) & much more. Located steps to parks, schools, trails, transit incl. OC Transpo Park & Ride, LRT stations Limebank & Bowesville. & amenities of both Barrhaven & historic Manotick village. (id:61594)
Property Details
|
MLS® Number
|
X12981226 |
|
Property Type
|
Single Family |
|
Community Name
|
2602 - Riverside South/Gloucester Glen |
|
Amenities Near By
|
Park, Place Of Worship, Public Transit, Schools |
|
Community Features
|
Community Centre, School Bus |
|
Equipment Type
|
Water Heater |
|
Features
|
Carpet Free |
|
Parking Space Total
|
6 |
|
Rental Equipment Type
|
Water Heater |
|
Structure
|
Patio(s), Shed |
Building
|
Bathroom Total
|
3 |
|
Bedrooms Above Ground
|
3 |
|
Bedrooms Total
|
3 |
|
Amenities
|
Fireplace(s) |
|
Appliances
|
Garage Door Opener Remote(s), Central Vacuum, Blinds, Dishwasher, Garage Door Opener, Storage Shed, Stove, Water Heater, Refrigerator |
|
Basement Type
|
Full |
|
Construction Style Attachment
|
Detached |
|
Cooling Type
|
Central Air Conditioning |
|
Exterior Finish
|
Brick, Stone |
|
Fire Protection
|
Alarm System |
|
Fireplace Present
|
Yes |
|
Fireplace Total
|
1 |
|
Foundation Type
|
Concrete |
|
Half Bath Total
|
1 |
|
Heating Fuel
|
Natural Gas |
|
Heating Type
|
Forced Air |
|
Stories Total
|
2 |
|
Size Interior
|
2,000 - 2,500 Ft2 |
|
Type
|
House |
|
Utility Water
|
Municipal Water |
Parking
|
Attached Garage
|
|
|
Garage
|
|
|
Inside Entry
|
|
Land
|
Acreage
|
No |
|
Fence Type
|
Fully Fenced |
|
Land Amenities
|
Park, Place Of Worship, Public Transit, Schools |
|
Landscape Features
|
Landscaped |
|
Sewer
|
Sanitary Sewer |
|
Size Depth
|
93 Ft ,7 In |
|
Size Frontage
|
37 Ft |
|
Size Irregular
|
37 X 93.6 Ft |
|
Size Total Text
|
37 X 93.6 Ft |
|
Zoning Description
|
R3z |
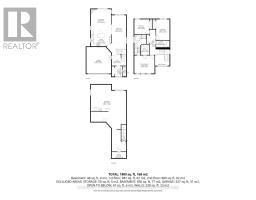
Rooms
| Level |
Type |
Length |
Width |
Dimensions |
|
Second Level |
Primary Bedroom |
4.48 m |
4 m |
4.48 m x 4 m |
|
Second Level |
Bathroom |
2.65 m |
2.35 m |
2.65 m x 2.35 m |
|
Second Level |
Bedroom |
3.28 m |
3.26 m |
3.28 m x 3.26 m |
|
Second Level |
Bedroom |
2.99 m |
4.6 m |
2.99 m x 4.6 m |
|
Second Level |
Bathroom |
2.98 m |
1.5 m |
2.98 m x 1.5 m |
|
Basement |
Recreational, Games Room |
3.47 m |
7.56 m |
3.47 m x 7.56 m |
|
Basement |
Laundry Room |
4.6 m |
3.1 m |
4.6 m x 3.1 m |
|
Basement |
Cold Room |
1.26 m |
3.48 m |
1.26 m x 3.48 m |
|
Basement |
Utility Room |
4.73 m |
2.25 m |
4.73 m x 2.25 m |
|
Basement |
Den |
3.28 m |
4.43 m |
3.28 m x 4.43 m |
|
Main Level |
Foyer |
1.66 m |
2.28 m |
1.66 m x 2.28 m |
|
Main Level |
Kitchen |
4.48 m |
5.87 m |
4.48 m x 5.87 m |
|
Main Level |
Dining Room |
3.22 m |
6.17 m |
3.22 m x 6.17 m |
|
Main Level |
Living Room |
4.47 m |
4.81 m |
4.47 m x 4.81 m |
|
Main Level |
Other |
5.3 m |
5.77 m |
5.3 m x 5.77 m |
https://www.realtor.ca/real-estate/29585353/220-dave-smith-crescent-ottawa-2602-riverside-southgloucester-glen