1 Bedroom
2 Bathroom
1,100 - 1,500 ft2
Bungalow
Fireplace
Central Air Conditioning
Forced Air
$749,900
Discover exceptional value in this TO BE BUILT bungalow located in the growing community of Thorndale. Offering 1,360 sq. ft. of thoughtfully designed living space, this home features a bright and airy open concept layout with seamless flow between the kitchen, living, and dining areasperfect for both everyday living and entertaining. Enjoy up-to-date finishes throughout. The spacious primary suite offers a luxurious 5-piece ensuite and generous walk-in closet, while a separate office or flex room provides a quiet space for work or hobbies. With attractive curb appeal, a welcoming front porch, and smart design, this home is an ideal choice for first-time buyers, downsizers, or investors. Located just minutes from London, with easy access to parks, trails, and local amenities, this property offers the perfect balance of small-town charm and modern convenience. Don't miss your chance to own a brand-new home at an affordable price just minutes from London. Photos are from a previous model for illustrative purposes. (id:61594)
Property Details
|
MLS® Number
|
X12946030 |
|
Property Type
|
Single Family |
|
Community Name
|
Thorndale |
|
Features
|
Flat Site, Sump Pump |
|
Parking Space Total
|
2 |
Building
|
Bathroom Total
|
2 |
|
Bedrooms Above Ground
|
1 |
|
Bedrooms Total
|
1 |
|
Age
|
New Building |
|
Amenities
|
Fireplace(s) |
|
Appliances
|
Garage Door Opener Remote(s) |
|
Architectural Style
|
Bungalow |
|
Basement Development
|
Unfinished |
|
Basement Type
|
N/a (unfinished) |
|
Construction Style Attachment
|
Detached |
|
Cooling Type
|
Central Air Conditioning |
|
Exterior Finish
|
Stucco, Stone |
|
Fireplace Present
|
Yes |
|
Fireplace Total
|
1 |
|
Foundation Type
|
Poured Concrete |
|
Heating Fuel
|
Natural Gas |
|
Heating Type
|
Forced Air |
|
Stories Total
|
1 |
|
Size Interior
|
1,100 - 1,500 Ft2 |
|
Type
|
House |
|
Utility Water
|
Municipal Water |
Parking
Land
|
Acreage
|
No |
|
Sewer
|
Sanitary Sewer |
|
Size Depth
|
151 Ft ,4 In |
|
Size Frontage
|
47 Ft ,9 In |
|
Size Irregular
|
47.8 X 151.4 Ft |
|
Size Total Text
|
47.8 X 151.4 Ft|under 1/2 Acre |
|
Zoning Description
|
R1-16 |
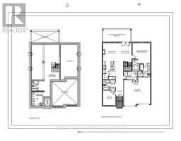
Rooms
| Level |
Type |
Length |
Width |
Dimensions |
|
Main Level |
Office |
2.83 m |
3.35 m |
2.83 m x 3.35 m |
|
Main Level |
Bathroom |
2.43 m |
1.52 m |
2.43 m x 1.52 m |
|
Main Level |
Kitchen |
4.14 m |
2.95 m |
4.14 m x 2.95 m |
|
Main Level |
Living Room |
3.99 m |
3.96 m |
3.99 m x 3.96 m |
|
Main Level |
Dining Room |
3.99 m |
2.46 m |
3.99 m x 2.46 m |
|
Main Level |
Primary Bedroom |
4.75 m |
4.14 m |
4.75 m x 4.14 m |
|
Main Level |
Bathroom |
3 m |
2.43 m |
3 m x 2.43 m |
|
Main Level |
Laundry Room |
3.2 m |
1.88 m |
3.2 m x 1.88 m |
Utilities
|
Cable
|
Available |
|
Electricity
|
Available |
|
Sewer
|
Available |
https://www.realtor.ca/real-estate/29544875/236-foxborough-place-thames-centre-thorndale-thorndale