4 Bedroom
4 Bathroom
3,000 - 3,500 ft2
Fireplace
Central Air Conditioning
Forced Air
Acreage
Landscaped
$2,099,999
Discover the perfect balance of space, privacy, and convenience with this exceptional country estate situated just steps outside London's city limits. Set on nearly 3 acres of beautifully expansive land, this rare offering provides the tranquility of rural living without sacrificing access to amenities. Your country retreat features over 3,300 square feet of above-grade living space, carefully designed to suit both comfortable living and elegant entertaining. Every room in this home is welcoming, spacious, and filled with natural light. Complemented by picturesque views in all directions that create a warm and inviting atmosphere throughout. The main floor features the primary bedroom, 1.5 bathrooms, a spacious eat-in kitchen, a dining area, a den/bedroom, and a formal living space, enhanced by a versatile room currently used as an office. Upstairs, a private retreat awaits, with two large bedrooms, another full bathroom, and a sitting area. Downstairs, a spacious family room is perfect for movie nights or entertaining. An additional bathroom and laundry room are included, with the potential to add one or two more bedrooms and plenty of storage space. A key feature of this property is the spacious 2,700-square-foot workshop, offering a great opportunity for hobbyists, entrepreneurs, or anyone needing versatile space. Whether you envision a home-based business, vehicle storage, or the ultimate workshop-don't miss this chance. They don't come around often! Surrounded by open skies and mature landscaping, this property is a peaceful sanctuary where wildlife thrives among the ponds, trees and fields surrounding. This property is a peaceful escape from city life stress, yet it remains just minutes from shopping, dining, and schools. It offers a rare chance to enjoy the best of both worlds: peaceful country living with all the conveniences of London nearby. This is more than a home; it's a lifestyle. Experience the space, freedom, and potential you've been waiting for. (id:61594)
Open House
This property has open houses!
Starts at:
2:00 pm
Ends at:
4:00 pm
Property Details
|
MLS® Number
|
X12991416 |
|
Property Type
|
Single Family |
|
Community Name
|
Rural Middlesex Centre |
|
Amenities Near By
|
Golf Nearby |
|
Community Features
|
School Bus |
|
Easement
|
None |
|
Equipment Type
|
None |
|
Features
|
Gazebo, Sump Pump |
|
Parking Space Total
|
12 |
|
Rental Equipment Type
|
None |
|
Structure
|
Deck, Patio(s), Porch, Shed, Greenhouse, Outbuilding, Workshop |
Building
|
Bathroom Total
|
4 |
|
Bedrooms Above Ground
|
4 |
|
Bedrooms Total
|
4 |
|
Age
|
51 To 99 Years |
|
Amenities
|
Fireplace(s) |
|
Appliances
|
Hot Tub, Garage Door Opener Remote(s), Oven - Built-in, Central Vacuum, Range, Water Heater, Water Softener, Dryer, Freezer, Furniture, Washer |
|
Basement Development
|
Finished |
|
Basement Type
|
Full (finished) |
|
Construction Status
|
Insulation Upgraded |
|
Construction Style Attachment
|
Detached |
|
Cooling Type
|
Central Air Conditioning |
|
Exterior Finish
|
Wood, Stone |
|
Fire Protection
|
Alarm System, Smoke Detectors |
|
Fireplace Present
|
Yes |
|
Foundation Type
|
Poured Concrete |
|
Half Bath Total
|
2 |
|
Heating Fuel
|
Propane |
|
Heating Type
|
Forced Air |
|
Stories Total
|
2 |
|
Size Interior
|
3,000 - 3,500 Ft2 |
|
Type
|
House |
|
Utility Water
|
Drilled Well |
Parking
|
Attached Garage
|
|
|
Garage
|
|
|
Inside Entry
|
|
|
R V
|
|
Land
|
Access Type
|
Public Road, Year-round Access |
|
Acreage
|
Yes |
|
Land Amenities
|
Golf Nearby |
|
Landscape Features
|
Landscaped |
|
Sewer
|
Septic System |
|
Size Depth
|
350 Ft |
|
Size Frontage
|
350 Ft |
|
Size Irregular
|
350 X 350 Ft |
|
Size Total Text
|
350 X 350 Ft|2 - 4.99 Acres |
|
Surface Water
|
Lake/pond |
|
Zoning Description
|
Ar |
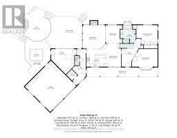
Rooms
| Level |
Type |
Length |
Width |
Dimensions |
|
Second Level |
Bedroom |
6.24 m |
6.11 m |
6.24 m x 6.11 m |
|
Second Level |
Bedroom |
4.85 m |
6.11 m |
4.85 m x 6.11 m |
|
Basement |
Laundry Room |
4.06 m |
3.72 m |
4.06 m x 3.72 m |
|
Basement |
Recreational, Games Room |
7.76 m |
8.57 m |
7.76 m x 8.57 m |
|
Main Level |
Primary Bedroom |
4.36 m |
4 m |
4.36 m x 4 m |
|
Main Level |
Kitchen |
3.88 m |
3.63 m |
3.88 m x 3.63 m |
|
Main Level |
Eating Area |
3.23 m |
4.85 m |
3.23 m x 4.85 m |
|
Main Level |
Dining Room |
3.37 m |
3.72 m |
3.37 m x 3.72 m |
|
Main Level |
Family Room |
4.63 m |
4.83 m |
4.63 m x 4.83 m |
|
Main Level |
Office |
5.17 m |
5.2 m |
5.17 m x 5.2 m |
Utilities
|
Cable
|
Installed |
|
Electricity
|
Installed |
https://www.realtor.ca/real-estate/29596229/2416-sunningdale-road-w-middlesex-centre-rural-middlesex-centre