2 Bedroom
1 Bathroom
700 - 1,100 ft2
Bungalow
Central Air Conditioning
Forced Air
Landscaped
$698,237
A Must-See Great Deal! Well-maintained, move-in-ready detached bungalow situated on a generous 54 x 115 ft lot, offering abundant indoor and outdoor space. Nestled in the highly desirable, family-friendly neighbourhood of Peel Village, this beautiful 2-bedroom, 1-bathroom home features a no-stairs main floor-perfect for seniors, downsizers, and first-time buyers. The main floor offers a spacious living room, a separate dining area, and a spacious kitchen with stainless steel appliances and a convenient walkout to the backyard. Large windows throughout bring in plenty of natural light. Two good-sized bedrooms, each with closets and windows, are complemented by a well-appointed 4-piece bathroom in a practical layout. The full, partially finished basement with a separate entrance provides excellent future potential and additional space for recreational use, a home office, or extended living. Enjoy a beautifully maintained front and backyard. The backyard features a composite deck-perfect for outdoor entertaining-along with two garden sheds offering ample storage space. An attached 1-car garage provides the option for a potential third bedroom conversion if someone wants an additional bedroom, while the recently updated driveway offers parking for up to four vehicles. Conveniently located close to schools, parks, shopping, and Brampton Transit stop is just steps away. Don't miss this fantastic opportunity to own a detached home in a prime Brampton location! Recent Updates- Windows (2019) Furnace & AC (2019), Roof (2019), Eavestrough (2019), Garage Door (2021), Hot Water Tank (2023), Driveway (2024), Ducts Cleaned (2025), Fresh Paint (2026). (id:61594)
Open House
This property has open houses!
Starts at:
2:00 pm
Ends at:
4:00 pm
Property Details
|
MLS® Number
|
W13028486 |
|
Property Type
|
Single Family |
|
Community Name
|
Brampton East |
|
Amenities Near By
|
Park, Public Transit, Schools |
|
Community Features
|
Community Centre, School Bus |
|
Equipment Type
|
Air Conditioner, Water Heater, Furnace |
|
Parking Space Total
|
5 |
|
Rental Equipment Type
|
Air Conditioner, Water Heater, Furnace |
|
Structure
|
Deck, Shed |
Building
|
Bathroom Total
|
1 |
|
Bedrooms Above Ground
|
2 |
|
Bedrooms Total
|
2 |
|
Appliances
|
Dishwasher, Dryer, Freezer, Stove, Washer, Window Coverings, Refrigerator |
|
Architectural Style
|
Bungalow |
|
Basement Development
|
Partially Finished |
|
Basement Features
|
Separate Entrance |
|
Basement Type
|
N/a, N/a (partially Finished), Full |
|
Construction Style Attachment
|
Detached |
|
Cooling Type
|
Central Air Conditioning |
|
Exterior Finish
|
Brick, Vinyl Siding |
|
Fire Protection
|
Smoke Detectors |
|
Flooring Type
|
Laminate, Carpeted, Concrete |
|
Foundation Type
|
Concrete |
|
Heating Fuel
|
Natural Gas |
|
Heating Type
|
Forced Air |
|
Stories Total
|
1 |
|
Size Interior
|
700 - 1,100 Ft2 |
|
Type
|
House |
|
Utility Water
|
Municipal Water |
Parking
Land
|
Acreage
|
No |
|
Fence Type
|
Fenced Yard |
|
Land Amenities
|
Park, Public Transit, Schools |
|
Landscape Features
|
Landscaped |
|
Sewer
|
Sanitary Sewer |
|
Size Depth
|
115 Ft ,8 In |
|
Size Frontage
|
54 Ft |
|
Size Irregular
|
54 X 115.7 Ft ; 54.04 Ft X121.23ft X 34.97 Ft X115.69 Ft |
|
Size Total Text
|
54 X 115.7 Ft ; 54.04 Ft X121.23ft X 34.97 Ft X115.69 Ft |
Rooms
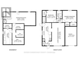
| Level |
Type |
Length |
Width |
Dimensions |
|
Basement |
Recreational, Games Room |
9.22 m |
3.85 m |
9.22 m x 3.85 m |
|
Basement |
Laundry Room |
2.46 m |
4.6 m |
2.46 m x 4.6 m |
|
Basement |
Den |
3.34 m |
4.21 m |
3.34 m x 4.21 m |
|
Basement |
Other |
2.26 m |
2.12 m |
2.26 m x 2.12 m |
|
Ground Level |
Living Room |
3.47 m |
6.31 m |
3.47 m x 6.31 m |
|
Ground Level |
Bathroom |
1.52 m |
2.23 m |
1.52 m x 2.23 m |
|
Ground Level |
Primary Bedroom |
3.84 m |
3.23 m |
3.84 m x 3.23 m |
|
Ground Level |
Bedroom 2 |
2.72 m |
3.23 m |
2.72 m x 3.23 m |
|
Ground Level |
Kitchen |
5.02 m |
2.46 m |
5.02 m x 2.46 m |
https://www.realtor.ca/real-estate/29638845/263-bartley-bull-parkway-brampton-brampton-east-brampton-east