4 Bedroom
3 Bathroom
3,500 - 5,000 ft2
Fireplace
None
Radiant Heat
Acreage
$1,249,900
Welcome to your private country estate an exceptional custom-built two-storey executive homeset on over 50 acres of pristine land in the sought after Bob's Lake region. Offering more than3,500 square feet of finished living space, this stunning new construction delivers the perfect balance of luxury, comfort, and complete privacy, surrounded by panoramic views of rolling, treed landscapes. Thoughtfully designed and custom throughout, the home features soaring ceilings and a breathtaking cathedral great room anchored by a floor to ceiling fireplace, creating a warm and inviting focal point. The chef inspired kitchen is equally impressive, complete with stone countertops, an oversized island ideal for entertaining, formal dining area and a separate pantry. The main level offers a highly functional layout, including a private home office, a spacious primary suite with a full ensuite and large walk-in closet, as well as main floor laundry and a guest bathroom. Upstairs, you'll find three generously sized bedrooms, each with its own walk-in closet and access to a second storey deck where you can take in the peaceful natural surroundings. A large upper level bathroom with separate shower and tub completes the space. Quality finishes include European windows, hardwood and tile throughout, in-floor heating, and multiple access points to the outdoors and garage. The impressive 29 x 40 ft garage is a true hobbyist's dream, featuring a man door, double car door, and full transport-size door-perfect for storing vehicles, equipment, or recreational toys. Set well back from the road with a long private driveway, this property offers unmatched seclusion and natural beauty. Enjoy your own large pond, mature trees, and abundant wildlife including deer-ideal for outdoor enthusiasts, hunters, or anyone seeking a peaceful retreat. Located in a region known for its many lakes and recreational opportunities, this is your chance to escape the city and embrace country living at its finest. (id:61594)
Property Details
|
MLS® Number
|
X12950782 |
|
Property Type
|
Single Family |
|
Community Name
|
47 - Frontenac South |
|
Equipment Type
|
Propane Tank |
|
Features
|
Rolling |
|
Parking Space Total
|
25 |
|
Rental Equipment Type
|
Propane Tank |
|
Structure
|
Deck, Porch |
Building
|
Bathroom Total
|
3 |
|
Bedrooms Above Ground
|
4 |
|
Bedrooms Total
|
4 |
|
Age
|
New Building |
|
Amenities
|
Fireplace(s) |
|
Appliances
|
Water Heater - Tankless, Water Heater |
|
Basement Type
|
Crawl Space |
|
Construction Style Attachment
|
Detached |
|
Cooling Type
|
None |
|
Exterior Finish
|
Stucco |
|
Fireplace Present
|
Yes |
|
Fireplace Total
|
1 |
|
Foundation Type
|
Poured Concrete |
|
Heating Fuel
|
Propane |
|
Heating Type
|
Radiant Heat |
|
Stories Total
|
2 |
|
Size Interior
|
3,500 - 5,000 Ft2 |
|
Type
|
House |
|
Utility Power
|
Generator |
|
Utility Water
|
Drilled Well |
Parking
Land
|
Acreage
|
Yes |
|
Sewer
|
Septic System |
|
Size Depth
|
2050 Ft ,4 In |
|
Size Frontage
|
1409 Ft ,3 In |
|
Size Irregular
|
1409.3 X 2050.4 Ft |
|
Size Total Text
|
1409.3 X 2050.4 Ft|50 - 100 Acres |
|
Surface Water
|
Lake/pond |
|
Zoning Description
|
Ru |
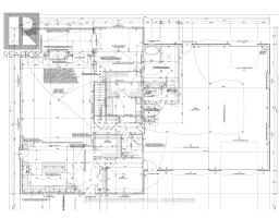
Rooms
| Level |
Type |
Length |
Width |
Dimensions |
|
Second Level |
Bedroom |
4.73 m |
4.54 m |
4.73 m x 4.54 m |
|
Second Level |
Bedroom |
4.96 m |
3.9 m |
4.96 m x 3.9 m |
|
Second Level |
Bathroom |
4.34 m |
2.37 m |
4.34 m x 2.37 m |
|
Second Level |
Bedroom |
4.73 m |
4.6 m |
4.73 m x 4.6 m |
|
Main Level |
Living Room |
7.24 m |
5.63 m |
7.24 m x 5.63 m |
|
Main Level |
Dining Room |
7.01 m |
3.29 m |
7.01 m x 3.29 m |
|
Main Level |
Kitchen |
5.25 m |
4.74 m |
5.25 m x 4.74 m |
|
Main Level |
Pantry |
2.6 m |
2.22 m |
2.6 m x 2.22 m |
|
Main Level |
Office |
3.44 m |
3.36 m |
3.44 m x 3.36 m |
|
Main Level |
Primary Bedroom |
4.95 m |
4.19 m |
4.95 m x 4.19 m |
|
Main Level |
Bathroom |
4.19 m |
3.38 m |
4.19 m x 3.38 m |
|
Main Level |
Bathroom |
2.2 m |
2.01 m |
2.2 m x 2.01 m |
|
Main Level |
Laundry Room |
3.58 m |
2.51 m |
3.58 m x 2.51 m |
Utilities
|
Electricity
|
Installed |
|
Wireless
|
Available |
https://www.realtor.ca/real-estate/29549922/293-bradshaw-road-frontenac-frontenac-south-47-frontenac-south