4 Bedroom
4 Bathroom
2,000 - 2,500 ft2
Fireplace
Central Air Conditioning
Forced Air
$1,395,000
Welcome to 3 Postan's Path in desirable Old Ancaster-an exceptional family home that has been immaculately cared for and showcases a complete interior refresh with upscale finishes throughout. Set on a generous 95.54' wide lot, the home features spacious principal rooms ideal for both everyday living and entertaining. Offering an elegant, symmetrical floor plan, this classic 4-bedroom residence blends timeless design with thoughtful modern updates, including engineered hardwood floors and a beautifully renovated kitchen with quartz countertops and stainless appliances that anchors the home with style and function. The main floor boasts a spacious living room, breakfast-dinette off the kitchen, separate dining room, and a warm, inviting family room with a gas fireplace and walkout to a private, oversized deck-perfect for gathering with family and friends. Upstairs is complemented by a primary suite with wall-to-wall closets and a 4-piece ensuite, three additional well-appointed bedrooms and an updated main bath provide comfort for the whole family. The fully finished basement adds incredible versatility with a large rec room, games area, and full bathroom, creating the perfect space for relaxation, play, or hosting guests. Additional conveniences include main floor laundry with direct access to the rear yard, powder room and inside entry from the double garage. Ideally located in one of Ancaster's most sought-after neighbourhoods, this home is close to top-rated schools, parks, shopping, and conservation trails, with easy access to McMaster University, Hillfield Strathallan College, Mohawk College, and the Hamilton Golf & Country Club. A truly turnkey property where pride of ownership is evident at every turn-ready to welcome its next family. (id:61594)
Property Details
|
MLS® Number
|
X12950662 |
|
Property Type
|
Single Family |
|
Community Name
|
Ancaster |
|
Amenities Near By
|
Park, Place Of Worship, Public Transit |
|
Community Features
|
Community Centre, School Bus |
|
Features
|
Wooded Area, Flat Site, Dry |
|
Parking Space Total
|
8 |
|
Structure
|
Deck |
Building
|
Bathroom Total
|
4 |
|
Bedrooms Above Ground
|
4 |
|
Bedrooms Total
|
4 |
|
Age
|
31 To 50 Years |
|
Amenities
|
Fireplace(s) |
|
Appliances
|
Central Vacuum, Water Heater, Water Meter, Dishwasher, Dryer, Garage Door Opener, Microwave, Stove, Washer, Window Coverings, Refrigerator |
|
Basement Development
|
Finished |
|
Basement Type
|
Full (finished) |
|
Construction Status
|
Insulation Upgraded |
|
Construction Style Attachment
|
Detached |
|
Cooling Type
|
Central Air Conditioning |
|
Exterior Finish
|
Aluminum Siding, Brick |
|
Fire Protection
|
Alarm System, Smoke Detectors |
|
Fireplace Present
|
Yes |
|
Fireplace Total
|
1 |
|
Foundation Type
|
Block |
|
Half Bath Total
|
1 |
|
Heating Fuel
|
Natural Gas |
|
Heating Type
|
Forced Air |
|
Stories Total
|
2 |
|
Size Interior
|
2,000 - 2,500 Ft2 |
|
Type
|
House |
|
Utility Water
|
Municipal Water |
Parking
|
Attached Garage
|
|
|
Garage
|
|
|
Inside Entry
|
|
Land
|
Acreage
|
No |
|
Land Amenities
|
Park, Place Of Worship, Public Transit |
|
Sewer
|
Sanitary Sewer |
|
Size Depth
|
100 Ft |
|
Size Frontage
|
95 Ft ,6 In |
|
Size Irregular
|
95.5 X 100 Ft |
|
Size Total Text
|
95.5 X 100 Ft |
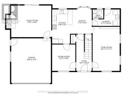
Rooms
| Level |
Type |
Length |
Width |
Dimensions |
|
Second Level |
Bedroom 2 |
3.56 m |
2.59 m |
3.56 m x 2.59 m |
|
Second Level |
Bedroom 3 |
3.35 m |
3.18 m |
3.35 m x 3.18 m |
|
Second Level |
Bedroom 4 |
3.76 m |
3.63 m |
3.76 m x 3.63 m |
|
Second Level |
Bathroom |
2.41 m |
2.36 m |
2.41 m x 2.36 m |
|
Second Level |
Primary Bedroom |
4.19 m |
4.09 m |
4.19 m x 4.09 m |
|
Second Level |
Bathroom |
2.74 m |
1.52 m |
2.74 m x 1.52 m |
|
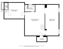
Basement |
Media |
8.03 m |
3.43 m |
8.03 m x 3.43 m |
|
Basement |
Recreational, Games Room |
8.03 m |
5.03 m |
8.03 m x 5.03 m |
|
Basement |
Bathroom |
2.84 m |
1.5 m |
2.84 m x 1.5 m |
|
Basement |
Cold Room |
2.46 m |
1.52 m |
2.46 m x 1.52 m |
|
Main Level |
Foyer |
5.05 m |
2.08 m |
5.05 m x 2.08 m |
|
Main Level |
Living Room |
6.12 m |
3.63 m |
6.12 m x 3.63 m |
|
Main Level |
Dining Room |
3.73 m |
3.05 m |
3.73 m x 3.05 m |
|
Main Level |
Kitchen |
4.47 m |
2.77 m |
4.47 m x 2.77 m |
|
Main Level |
Other |
3.48 m |
2.51 m |
3.48 m x 2.51 m |
|
Main Level |
Family Room |
5.41 m |
4.37 m |
5.41 m x 4.37 m |
|
Main Level |
Bathroom |
1.45 m |
1.12 m |
1.45 m x 1.12 m |
|
Main Level |
Laundry Room |
3.63 m |
2.08 m |
3.63 m x 2.08 m |
Utilities
|
Cable
|
Installed |
|
Electricity
|
Installed |
|
Sewer
|
Installed |
https://www.realtor.ca/real-estate/29550034/3-postans-path-hamilton-ancaster-ancaster