4 Bedroom
2 Bathroom
1,500 - 2,000 ft2
Central Air Conditioning
Forced Air
$694,000
Do you want an affordable spacious beautiful house on a large lot in one of the best neighborhoods in Ottawa? This is it!!! Renovated, move-in ready, spacious family home on a large lot in one of the best centrally located neighborhoods in Ottawa. Freshly painted (2026), with all new interior doors (2026), refinished hardwood (2026), and new carpet (2026), it features 4 very spacious bedrooms, an extra-large living room with a dining area, a separate family room with its own outside entry, and a good-size kitchen with quartz countertops (2013). Oversized garage (2008) and long driveway offer plenty of parking. Not only is this an awesome family home, but it is also a great investment property. The family room can be used as a 5th bedroom, and its location makes it easy to rent out and offers great land appreciation. You can even easily split one of the bedrooms into two (yes, the bedrooms are that large) and add a shower to the powder room, making it a 6-bedroom house even before you start finishing the basement. Other recent updates include a new roof (2023) and A/C (2023). Do you want an affordable spacious beautiful house on a large lot in one of the best neighborhoods in Ottawa? This is it!!! *For Additional Property Details Click The Brochure Icon Below* (id:61594)
Property Details
|
MLS® Number
|
X12955126 |
|
Property Type
|
Single Family |
|
Community Name
|
7201 - City View/Skyline/Fisher Heights/Parkwood Hills |
|
Equipment Type
|
Water Heater |
|
Parking Space Total
|
5 |
|
Rental Equipment Type
|
Water Heater |
Building
|
Bathroom Total
|
2 |
|
Bedrooms Above Ground
|
4 |
|
Bedrooms Total
|
4 |
|
Appliances
|
Dishwasher, Dryer, Microwave, Stove, Washer, Refrigerator |
|
Basement Development
|
Unfinished |
|
Basement Type
|
N/a (unfinished) |
|
Construction Style Attachment
|
Detached |
|
Cooling Type
|
Central Air Conditioning |
|
Exterior Finish
|
Brick |
|
Foundation Type
|
Block |
|
Half Bath Total
|
1 |
|
Heating Fuel
|
Natural Gas |
|
Heating Type
|
Forced Air |
|
Stories Total
|
2 |
|
Size Interior
|
1,500 - 2,000 Ft2 |
|
Type
|
House |
|
Utility Water
|
Municipal Water |
Parking
Land
|
Acreage
|
No |
|
Sewer
|
Sanitary Sewer |
|
Size Depth
|
107 Ft |
|
Size Frontage
|
72 Ft ,6 In |
|
Size Irregular
|
72.5 X 107 Ft |
|
Size Total Text
|
72.5 X 107 Ft |
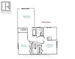
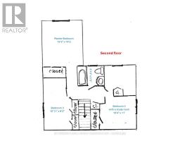
Rooms
| Level |
Type |
Length |
Width |
Dimensions |
|
Second Level |
Bedroom |
4.63 m |
4.32 m |
4.63 m x 4.32 m |
|
Second Level |
Bedroom 2 |
5.59 m |
3.36 m |
5.59 m x 3.36 m |
|
Second Level |
Bedroom 3 |
4.86 m |
2.82 m |
4.86 m x 2.82 m |
|
Second Level |
Bathroom |
2.09 m |
1.62 m |
2.09 m x 1.62 m |
|
Main Level |
Great Room |
7.19 m |
3.43 m |
7.19 m x 3.43 m |
|
Main Level |
Family Room |
4.63 m |
4.32 m |
4.63 m x 4.32 m |
|
Main Level |
Bedroom 4 |
3.51 m |
3.13 m |
3.51 m x 3.13 m |
|
Main Level |
Kitchen |
3.59 m |
3.53 m |
3.59 m x 3.53 m |
|
Main Level |
Bathroom |
2.14 m |
1.53 m |
2.14 m x 1.53 m |
Utilities
|
Cable
|
Installed |
|
Electricity
|
Installed |
|
Sewer
|
Installed |
https://www.realtor.ca/real-estate/29555442/30-sunnycrest-drive-ottawa-7201-city-viewskylinefisher-heightsparkwood-hills