4 Bedroom
2 Bathroom
1,100 - 1,500 ft2
Wall Unit
Forced Air
$439,000
Welcome to 334-336 Eleventh Street East, a legal, well-maintained duplex offering immediate rental income in a desirable central Cornwall neighbourhood. The property is fully tenanted, with tenants paying all utilities, and generates $36,249 in annual gross rental income. With solid income, low operating exposure, and major capital improvements already completed, this property presents a compelling investment opportunity in a market where cash-flow-positive duplexes are increasingly hard to find. The property consists of two spacious 2-bedroom units, both clean, well cared for, and updated over time, featuring functional layouts and neutral finishes suitable for long-term tenancy. The deep lot provides three (3) off-street parking spaces, along with a generous backyard. Notable upgrades include renovated kitchens and bathrooms (2019-2022), updated flooring, a high-efficiency gas furnace (2021), PVC windows, new exterior balcony and patio (2024), sealed driveway (2025), and roof (2013). Included (sold without legal warranty of quality): Unit 334: Fridge, stove, dishwasher, washer, dryer, living room sofa, sofa bed in bedroom, range hood microwave. Unit 336: Range hood, furnace (2021).Note: Both water heaters and space heater (Unit 334) are rented via Reliance. Whether you're an investor seeking a turnkey income property or a savvy homeowner looking to offset your mortgage, this opportunity checks all the boxes. Don't miss this rare gem, book your showing today and unlock the potential of 334- 336 Eleventh Street East! (id:61594)
Property Details
|
MLS® Number
|
X12746912 |
|
Property Type
|
Multi-family |
|
Community Name
|
717 - Cornwall |
|
Equipment Type
|
Water Heater |
|
Features
|
Flat Site, Carpet Free, Sump Pump |
|
Parking Space Total
|
3 |
|
Rental Equipment Type
|
Water Heater |
|
Structure
|
Porch, Deck, Shed |
Building
|
Bathroom Total
|
2 |
|
Bedrooms Above Ground
|
4 |
|
Bedrooms Total
|
4 |
|
Age
|
51 To 99 Years |
|
Amenities
|
Separate Heating Controls, Separate Electricity Meters |
|
Appliances
|
Water Meter, Dishwasher, Dryer, Microwave, Hood Fan, Stove, Washer, Refrigerator |
|
Basement Development
|
Unfinished |
|
Basement Type
|
N/a (unfinished) |
|
Cooling Type
|
Wall Unit |
|
Exterior Finish
|
Vinyl Siding |
|
Fire Protection
|
Smoke Detectors |
|
Flooring Type
|
Vinyl, Ceramic, Laminate |
|
Foundation Type
|
Concrete |
|
Half Bath Total
|
2 |
|
Heating Fuel
|
Natural Gas |
|
Heating Type
|
Forced Air |
|
Stories Total
|
2 |
|
Size Interior
|
1,100 - 1,500 Ft2 |
|
Type
|
Duplex |
|
Utility Water
|
Municipal Water |
Parking
Land
|
Acreage
|
No |
|
Fence Type
|
Fenced Yard |
|
Sewer
|
Sanitary Sewer |
|
Size Depth
|
103 Ft ,4 In |
|
Size Frontage
|
40 Ft |
|
Size Irregular
|
40 X 103.4 Ft |
|
Size Total Text
|
40 X 103.4 Ft |
|
Zoning Description
|
Residential |
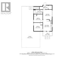
Rooms
| Level |
Type |
Length |
Width |
Dimensions |
|
Second Level |
Primary Bedroom |
3.46 m |
3.25 m |
3.46 m x 3.25 m |
|
Second Level |
Bedroom 2 |
3.46 m |
3.2 m |
3.46 m x 3.2 m |
|
Second Level |
Family Room |
3.45 m |
4.55 m |
3.45 m x 4.55 m |
|
Second Level |
Bathroom |
3.46 m |
1.59 m |
3.46 m x 1.59 m |
|
Second Level |
Cold Room |
3.48 m |
1.53 m |
3.48 m x 1.53 m |
|
Second Level |
Kitchen |
3.45 m |
3.69 m |
3.45 m x 3.69 m |
|
Main Level |
Bathroom |
3.41 m |
1.7 m |
3.41 m x 1.7 m |
|
Main Level |
Cold Room |
3.34 m |
1.52 m |
3.34 m x 1.52 m |
|
Main Level |
Primary Bedroom |
3.41 m |
3.21 m |
3.41 m x 3.21 m |
|
Main Level |
Bedroom 2 |
3.41 m |
3.14 m |
3.41 m x 3.14 m |
|
Main Level |
Living Room |
3.5 m |
3.72 m |
3.5 m x 3.72 m |
|
Main Level |
Kitchen |
3.5 m |
4.42 m |
3.5 m x 4.42 m |
Utilities
|
Cable
|
Available |
|
Electricity
|
Available |
|
Sewer
|
Installed |
https://www.realtor.ca/real-estate/29311048/334-336-eleventh-street-e-cornwall-717-cornwall