5 Bedroom
4 Bathroom
2,000 - 2,500 ft2
Bungalow
Fireplace
Inground Pool
Central Air Conditioning
Forced Air
Acreage
Landscaped
$3,299,000
Exclusive Rural Retreat with 82 Acres of Privacy and Year-Round Recreation! This secluded property delivers the ultimate country lifestyle while being central to everything you need & want in Niagara. The quality-built ranch bungalow offers over 3,800 sq. ft. of finished living space with an open concept design, vaulted ceilings in the kitchen and living room, 3+2 bedrooms, 3.5 bathrooms, and a fully finished basement perfect for entertaining or extended family. A true wrap-around porch spans both the front and back of the home, creating the ideal spot to take in the views from every angle. For the hobbyist or professional, there's a 30 x 60 insulated 3-car shop in addition to the 3-car attached garage. Outdoors, its every country persons dream: a 12-ft deep stocked pond, in-ground pool, hot tub, and 20+ groomed ATV/hiking trails weaving through more than 20 Acres of forest. Stables and open space make it ideal for hobby farming, while the rest of the property offers endless opportunities for adventure, riding, hunting, or simply enjoying the peace and privacy.This property blends luxury finishes with thoughtful design, providing comfort indoors and unlimited recreation outdoors. Just minutes to Port Colborne, Welland, the new hospital, and quick QEW access, this property is a rare find where tranquility & nature meets premium lifestyle. See links for all updates & details. (id:61594)
Property Details
|
MLS® Number
|
X12805722 |
|
Property Type
|
Single Family |
|
Community Name
|
873 - Bethel |
|
Equipment Type
|
Propane Tank |
|
Features
|
Wooded Area, Irregular Lot Size |
|
Parking Space Total
|
16 |
|
Pool Type
|
Inground Pool |
|
Rental Equipment Type
|
Propane Tank |
|
Structure
|
Deck, Patio(s), Porch, Workshop, Shed, Outbuilding |
Building
|
Bathroom Total
|
4 |
|
Bedrooms Above Ground
|
3 |
|
Bedrooms Below Ground
|
2 |
|
Bedrooms Total
|
5 |
|
Age
|
16 To 30 Years |
|
Appliances
|
Hot Tub, Central Vacuum, Water Treatment |
|
Architectural Style
|
Bungalow |
|
Basement Development
|
Finished |
|
Basement Type
|
Full (finished) |
|
Construction Style Attachment
|
Detached |
|
Cooling Type
|
Central Air Conditioning |
|
Fireplace Present
|
Yes |
|
Fireplace Total
|
1 |
|
Fireplace Type
|
Woodstove |
|
Foundation Type
|
Poured Concrete |
|
Half Bath Total
|
1 |
|
Heating Fuel
|
Propane |
|
Heating Type
|
Forced Air |
|
Stories Total
|
1 |
|
Size Interior
|
2,000 - 2,500 Ft2 |
|
Type
|
House |
|
Utility Power
|
Generator |
|
Utility Water
|
Cistern |
Parking
|
Attached Garage
|
|
|
Garage
|
|
|
R V
|
|
Land
|
Acreage
|
Yes |
|
Landscape Features
|
Landscaped |
|
Sewer
|
Septic System |
|
Size Depth
|
3620 Ft |
|
Size Frontage
|
537 Ft |
|
Size Irregular
|
537 X 3620 Ft |
|
Size Total Text
|
537 X 3620 Ft|50 - 100 Acres |
|
Surface Water
|
Lake/pond |
|
Zoning Description
|
A Ep |
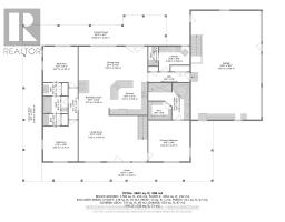
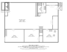
Rooms
| Level |
Type |
Length |
Width |
Dimensions |
|
Basement |
Family Room |
8.55 m |
10.95 m |
8.55 m x 10.95 m |
|
Basement |
Bedroom 4 |
3.81 m |
4.19 m |
3.81 m x 4.19 m |
|
Basement |
Bedroom 5 |
3.81 m |
3.85 m |
3.81 m x 3.85 m |
|
Main Level |
Living Room |
7.52 m |
4.88 m |
7.52 m x 4.88 m |
|
Main Level |
Kitchen |
7.52 m |
7.21 m |
7.52 m x 7.21 m |
|
Main Level |
Laundry Room |
3.15 m |
1.83 m |
3.15 m x 1.83 m |
|
Main Level |
Primary Bedroom |
4.15 m |
4.28 m |
4.15 m x 4.28 m |
|
Main Level |
Bedroom 2 |
3.757 m |
3.68 m |
3.757 m x 3.68 m |
|
Main Level |
Bedroom 3 |
3.75 m |
3.68 m |
3.75 m x 3.68 m |
https://www.realtor.ca/real-estate/29382136/3481-troup-road-port-colborne-bethel-873-bethel