4 Bedroom
2 Bathroom
1,100 - 1,500 ft2
Raised Bungalow
Fireplace
Wall Unit
Baseboard Heaters
$389,900
This charming raised brick bungalow in peaceful Beachburg gives you 4 bedrooms and 2 bathrooms on a spacious lot-perfect for families ready to add their own fresh updates to a solid, well-loved home. Walk into a bright living room with a handy mini-split air conditioning unit to beat the heat, opening to a formal dining room with sliding glass doors onto a raised wooden deck that's great for summer BBQs or morning coffee. The large kitchen has plenty of room for everyday meals and has real potential to shine with your ideas. Three generous bedrooms are on the main floor, including the primary with a cheater door to the 4-piece bathroom for easy access. Head downstairs to a cozy rec room with a wood-burning fireplace - ideal for family game nights-plus a walkout to the backyard, an extra bedroom, a 3-piece bathroom, and direct entry to the attached double garage for all your storage needs. The property backs onto a quiet treed area for privacy, room to garden or play, and that relaxed rural vibe. In quiet Beachburg near beaches and Ottawa Valley trails, this home has great bones and endless possibilities- make it your own today! 24 hour irrevocable on all offers. (id:61594)
Property Details
|
MLS® Number
|
X13015894 |
|
Property Type
|
Single Family |
|
Community Name
|
581 - Beachburg |
|
Parking Space Total
|
8 |
Building
|
Bathroom Total
|
2 |
|
Bedrooms Above Ground
|
3 |
|
Bedrooms Below Ground
|
1 |
|
Bedrooms Total
|
4 |
|
Amenities
|
Fireplace(s) |
|
Appliances
|
Garage Door Opener Remote(s), Water Heater, Dishwasher, Dryer, Garage Door Opener, Stove, Washer, Refrigerator |
|
Architectural Style
|
Raised Bungalow |
|
Basement Development
|
Finished |
|
Basement Features
|
Walk Out |
|
Basement Type
|
Full (finished) |
|
Construction Style Attachment
|
Detached |
|
Cooling Type
|
Wall Unit |
|
Exterior Finish
|
Brick |
|
Fireplace Present
|
Yes |
|
Fireplace Total
|
1 |
|
Foundation Type
|
Block |
|
Heating Fuel
|
Electric |
|
Heating Type
|
Baseboard Heaters |
|
Stories Total
|
1 |
|
Size Interior
|
1,100 - 1,500 Ft2 |
|
Type
|
House |
|
Utility Water
|
Municipal Water |
Parking
Land
|
Acreage
|
No |
|
Sewer
|
Septic System |
|
Size Depth
|
149 Ft ,9 In |
|
Size Frontage
|
69 Ft ,10 In |
|
Size Irregular
|
69.9 X 149.8 Ft |
|
Size Total Text
|
69.9 X 149.8 Ft |
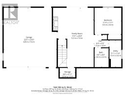
Rooms
| Level |
Type |
Length |
Width |
Dimensions |
|
Basement |
Laundry Room |
1.543 m |
3.441 m |
1.543 m x 3.441 m |
|
Basement |
Recreational, Games Room |
7.522 m |
4.718 m |
7.522 m x 4.718 m |
|
Basement |
Bedroom |
3.247 m |
3.473 m |
3.247 m x 3.473 m |
|
Basement |
Bathroom |
2.397 m |
1.82 m |
2.397 m x 1.82 m |
|
Main Level |
Dining Room |
3.803 m |
2.893 m |
3.803 m x 2.893 m |
|
Main Level |
Kitchen |
2.887 m |
3.965 m |
2.887 m x 3.965 m |
|
Main Level |
Living Room |
5.352 m |
4.651 m |
5.352 m x 4.651 m |
|
Main Level |
Bedroom |
3.173 m |
2.892 m |
3.173 m x 2.892 m |
|
Main Level |
Bedroom |
2.895 m |
3.366 m |
2.895 m x 3.366 m |
|
Main Level |
Primary Bedroom |
3.542 m |
4.529 m |
3.542 m x 4.529 m |
|
Main Level |
Bathroom |
3.528 m |
1.484 m |
3.528 m x 1.484 m |
|
Ground Level |
Other |
6.868 m |
7.597 m |
6.868 m x 7.597 m |
Utilities
https://www.realtor.ca/real-estate/29624805/35-harris-crescent-whitewater-region-581-beachburg