365 Queen Street S Mississauga, Ontario L5M 1M3

2,500 - 3,000 ft2
Fireplace Central Air Conditioning Radiant Heat

$2,199,999

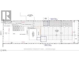
Rare infill development opportunity in the heart of one of Mississauga's most established and sought-after neighbourhoods, Streetsville. This property includes a survey, conceptual plans for 8 townhouses behind the existing detached home, and preliminary studies in support of the proposed plans. Seller shall provide documents on acceptance of conditional offer. The property is sold as-is. No representations or warranties. (id:61594)

Property Details

MLS® Number W12153548
Property Type Single Family
Community Name Streetsville
Parking Space Total 20

Building

Appliances Water Heater
Basement Development Partially Finished
Basement Type N/a (partially Finished)
Construction Style Attachment Detached
Cooling Type Central Air Conditioning
Fireplace Present Yes
Foundation Type Unknown
Heating Fuel Natural Gas
Heating Type Radiant Heat
Stories Total 2
Size Interior 2,500 - 3,000 Ft2
Type House
Utility Water Municipal Water

Parking

Detached Garage
Garage

Land

Acreage No
Sewer Sanitary Sewer
Size Depth 312 Ft
Size Frontage 93 Ft
Size Irregular 93 X 312 Ft
Size Total Text 93 X 312 Ft|1/2 - 1.99 Acres

Utilities

Cable Available
Electricity Installed
Sewer Installed

https://www.realtor.ca/real-estate/28330630/365-queen-street-s-mississauga-streetsville-streetsville

Contact Us

Contact us for more information

Generating Captcha

Your Favourites

 

No Favourites Found