3 Bedroom
2 Bathroom
1,200 - 1,399 ft2
Fireplace
Central Air Conditioning
Forced Air
Landscaped
$649,900Maintenance, Heat, Electricity, Water, Cable TV, Common Area Maintenance, Insurance, Parking
$1,235.94 Monthly
Flooded with natural light, this exceptionally spacious three-bedroom, two-bath corner suite offers a thoughtfully designed layout that feels both open and inviting. Expansive windows capture serene lake and nature views, while the generous living room is anchored by a beautiful gas fireplace-creating a warm, welcoming space to relax or entertain. A separate dining area offers seamless flow and a walk-out to the large private balcony, extending your living space outdoors and providing the perfect setting to enjoy morning coffee or evening sunsets. The updated kitchen is both stylish and functional, featuring stone countertops, abundant cabinetry, and a large pantry that makes everyday living effortless. Each of the three bedrooms offer versatility, ideal for family living, guests, or a dedicated home office. The primary suite serves as a private retreat with a walk-in closet and a four-piece ensuite. In-suite laundry and a well-designed floor plan enhance both privacy and comfort throughout. Residents enjoy an exceptional range of building amenities, including a fitness centre, outdoor pool, tennis court, library, games room, craft room, workshop, and guest suite-truly everything you need, right at home. Ideally located within walking distance to shopping, transit, and everyday conveniences, with nearby parks and quick access to major highways. One parking space included #107. (id:61594)
Property Details
|
MLS® Number
|
W12773420 |
|
Property Type
|
Single Family |
|
Community Name
|
Brant Hills |
|
Amenities Near By
|
Golf Nearby, Park, Place Of Worship, Public Transit, Schools |
|
Community Features
|
Pets Allowed With Restrictions, Community Centre |
|
Features
|
Irregular Lot Size, Elevator, Lighting, Balcony, Level, Sauna |
|
Parking Space Total
|
1 |
|
View Type
|
City View, Lake View |
Building
|
Bathroom Total
|
2 |
|
Bedrooms Above Ground
|
3 |
|
Bedrooms Total
|
3 |
|
Age
|
31 To 50 Years |
|
Amenities
|
Car Wash, Recreation Centre, Party Room, Fireplace(s), Separate Heating Controls |
|
Appliances
|
Garage Door Opener Remote(s), Dishwasher, Dryer, Garage Door Opener, Microwave, Stove, Washer, Window Coverings, Refrigerator |
|
Basement Type
|
None |
|
Cooling Type
|
Central Air Conditioning |
|
Exterior Finish
|
Brick, Stucco |
|
Fire Protection
|
Controlled Entry, Security System, Smoke Detectors |
|
Fireplace Present
|
Yes |
|
Foundation Type
|
Poured Concrete |
|
Heating Fuel
|
Natural Gas |
|
Heating Type
|
Forced Air |
|
Size Interior
|
1,200 - 1,399 Ft2 |
Parking
Land
|
Acreage
|
No |
|
Land Amenities
|
Golf Nearby, Park, Place Of Worship, Public Transit, Schools |
|
Landscape Features
|
Landscaped |
|
Zoning Description
|
Rh4 |
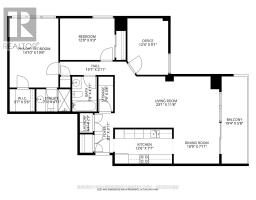
Rooms
| Level |
Type |
Length |
Width |
Dimensions |
|
Main Level |
Foyer |
2.79 m |
1.19 m |
2.79 m x 1.19 m |
|
Main Level |
Living Room |
7.04 m |
3.56 m |
7.04 m x 3.56 m |
|
Main Level |
Other |
2.36 m |
1.12 m |
2.36 m x 1.12 m |
|
Main Level |
Dining Room |
3.28 m |
2.41 m |
3.28 m x 2.41 m |
|
Main Level |
Kitchen |
3.81 m |
2.31 m |
3.81 m x 2.31 m |
|
Main Level |
Primary Bedroom |
4.52 m |
3.2 m |
4.52 m x 3.2 m |
|
Main Level |
Bathroom |
2.21 m |
1.5 m |
2.21 m x 1.5 m |
|
Main Level |
Bedroom 2 |
3.66 m |
2.82 m |
3.66 m x 2.82 m |
|
Main Level |
Bedroom 3 |
3.76 m |
2.77 m |
3.76 m x 2.77 m |
|
Main Level |
Bathroom |
2.34 m |
1.5 m |
2.34 m x 1.5 m |
|
Main Level |
Laundry Room |
1.55 m |
0.84 m |
1.55 m x 0.84 m |
https://www.realtor.ca/real-estate/29342008/407-2055-upper-middle-road-burlington-brant-hills-brant-hills