2 Bedroom
2 Bathroom
1,000 - 1,199 ft2
Central Air Conditioning
Forced Air
$469,900Maintenance, Insurance, Water, Common Area Maintenance
$713.13 Monthly
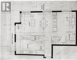
Perched on the top floor with western exposure, this sun-filled corner unit offers exceptional light, privacy and airy living space! Featuring approximately 1034 sq ft of interior space plus over 450 sq ft of exterior space , this generously proportioned 2 bedroom, 2 full bathroom unit offers windows on two sides, soaring ceilings, and warm hardwood floors flowing throughout the inviting main living space. With generous cupboard space and a centre island, the functional kitchen anchors the unit and provides easy access to the secondary balcony with gas BBQ line. The adjoining living and dining area is bright and welcoming, easily accommodating comfortable furnishings for relaxing or hosting friends. This space extends to a roomy west-facing terrace-perfect for sunset lounging, al fresco meals, and container gardening. The primary bedroom offers ample proportions, roomy walk-in closet and a 3 piece ensuite bath with walk in shower. Situated on the opposite end of the unit, the second bedroom provides flexibility for guests or a home office. This room benefits from a large closet and ensuite access to the main 4 piece bathroom, also accessed from the main foyer. Cross-breezes, sky views, and the quiet of a top-floor position enhance everyday comfort, with the thoughtful layout maximizing both openness and function. In suite laundry, underground heated parking and storage locker. With rare expansive outdoor space, abundant natural light, and a refined yet relaxed atmosphere, this residence delivers elevated condo living in a sunsplashed setting. Within close proximity of amenities, transit, shopping, Queensway Carleton Hospital, as well as nearby access to both 416 and 417, this welcoming unit boasts the perfect combination of lifestyle and convenience within close proximity of everyday essentials! (id:61594)
Property Details
|
MLS® Number
|
X12826680 |
|
Property Type
|
Single Family |
|
Community Name
|
6301 - Redwood Park |
|
Amenities Near By
|
Public Transit |
|
Community Features
|
Pets Allowed With Restrictions |
|
Equipment Type
|
Water Heater - Tankless, Water Heater |
|
Features
|
Carpet Free, In Suite Laundry |
|
Parking Space Total
|
1 |
|
Rental Equipment Type
|
Water Heater - Tankless, Water Heater |
|
Structure
|
Deck |
|
View Type
|
Mountain View |
Building
|
Bathroom Total
|
2 |
|
Bedrooms Above Ground
|
2 |
|
Bedrooms Total
|
2 |
|
Age
|
6 To 10 Years |
|
Amenities
|
Storage - Locker |
|
Appliances
|
Blinds, Dishwasher, Dryer, Stove, Washer, Refrigerator |
|
Basement Type
|
None |
|
Cooling Type
|
Central Air Conditioning |
|
Exterior Finish
|
Brick Veneer, Hardboard |
|
Heating Fuel
|
Natural Gas |
|
Heating Type
|
Forced Air |
|
Size Interior
|
1,000 - 1,199 Ft2 |
|
Type
|
Apartment |
Parking
Land
|
Acreage
|
No |
|
Land Amenities
|
Public Transit |
Rooms
| Level |
Type |
Length |
Width |
Dimensions |
|
Main Level |
Foyer |
4.3434 m |
1.3462 m |
4.3434 m x 1.3462 m |
|
Main Level |
Living Room |
4.7244 m |
2.6924 m |
4.7244 m x 2.6924 m |
|
Main Level |
Dining Room |
4.7244 m |
2.1336 m |
4.7244 m x 2.1336 m |
|
Main Level |
Kitchen |
3.937 m |
2.3368 m |
3.937 m x 2.3368 m |
|
Main Level |
Primary Bedroom |
3.7084 m |
2.9972 m |
3.7084 m x 2.9972 m |
|
Main Level |
Bathroom |
2.5908 m |
1.4986 m |
2.5908 m x 1.4986 m |
|
Main Level |
Bedroom |
3.8862 m |
3.0226 m |
3.8862 m x 3.0226 m |
|
Main Level |
Bathroom |
2.6416 m |
1.4986 m |
2.6416 m x 1.4986 m |
https://www.realtor.ca/real-estate/29406770/415-2785-baseline-road-ottawa-6301-redwood-park