4 Bedroom
1 Bathroom
1,097 ft2
Bungalow
Central Air Conditioning
Forced Air
$899,900
This charming 3+1 bedroom bungalow has been lovingly and meticulously maintained by one family for over 70 years. Filled with natural light and brimming with timeless character, this home offers a rare opportunity to become part of one of Ancaster’s most sought-after, mature, and family-friendly neighbourhoods. Situated on an impressive 75 x 100 ft lot, the possibilities here are truly endless. Whether you’re a first-time buyer looking to establish roots in a welcoming community, planning a thoughtful addition to create more space for your growing family, or envisioning a custom dream home build, this property provides the perfect canvas. Balancing charm, character, and everyday convenience, this centrally located home is just minutes from everything Ancaster has to offer shopping, parks,scenic trails, golf courses, highway access, and top-rated schools, including a French immersion program at Frank Panabaker Elementary. A rare opportunity to create your next chapter in a truly special community. (id:61594)
Property Details
|
MLS® Number
|
40804090 |
|
Property Type
|
Single Family |
|
Amenities Near By
|
Park, Place Of Worship, Playground, Public Transit, Schools, Shopping |
|
Community Features
|
School Bus |
|
Equipment Type
|
Water Heater |
|
Features
|
Automatic Garage Door Opener |
|
Parking Space Total
|
3 |
|
Rental Equipment Type
|
Water Heater |
Building
|
Bathroom Total
|
1 |
|
Bedrooms Above Ground
|
3 |
|
Bedrooms Below Ground
|
1 |
|
Bedrooms Total
|
4 |
|
Appliances
|
Dryer, Refrigerator, Stove, Washer, Garage Door Opener |
|
Architectural Style
|
Bungalow |
|
Basement Development
|
Partially Finished |
|
Basement Type
|
Full (partially Finished) |
|
Construction Style Attachment
|
Detached |
|
Cooling Type
|
Central Air Conditioning |
|
Exterior Finish
|
Aluminum Siding |
|
Heating Type
|
Forced Air |
|
Stories Total
|
1 |
|
Size Interior
|
1,097 Ft2 |
|
Type
|
House |
|
Utility Water
|
Municipal Water |
Parking
Land
|
Access Type
|
Highway Access |
|
Acreage
|
No |
|
Land Amenities
|
Park, Place Of Worship, Playground, Public Transit, Schools, Shopping |
|
Sewer
|
Municipal Sewage System |
|
Size Depth
|
100 Ft |
|
Size Frontage
|
75 Ft |
|
Size Irregular
|
0.17 |
|
Size Total
|
0.17 Ac|under 1/2 Acre |
|
Size Total Text
|
0.17 Ac|under 1/2 Acre |
|
Zoning Description
|
Er |
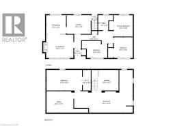
Rooms
| Level |
Type |
Length |
Width |
Dimensions |
|
Basement |
Utility Room |
|
|
20'9'' x 10'8'' |
|
Basement |
Laundry Room |
|
|
13'5'' x 10'7'' |
|
Basement |
Family Room |
|
|
29'6'' x 21'3'' |
|
Basement |
Bedroom |
|
|
17'8'' x 10'3'' |
|
Main Level |
4pc Bathroom |
|
|
Measurements not available |
|
Main Level |
Bedroom |
|
|
8'6'' x 10'3'' |
|
Main Level |
Bedroom |
|
|
10'4'' x 9'5'' |
|
Main Level |
Primary Bedroom |
|
|
10'8'' x 9'5'' |
|
Main Level |
Kitchen |
|
|
9'4'' x 12'4'' |
|
Main Level |
Dining Room |
|
|
9'8'' x 9'10'' |
|
Main Level |
Living Room |
|
|
11'7'' x 15'0'' |
https://www.realtor.ca/real-estate/29365811/42-gilbert-avenue-ancaster