3 Bedroom
1 Bathroom
1,100 - 1,500 ft2
Fireplace
Central Air Conditioning
Forced Air
$589,900
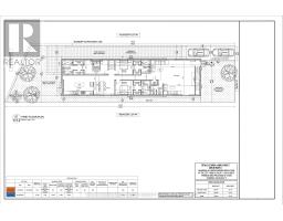
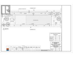
Approved shovel-ready triplex development opportunity in St. Catharines! Calling all investors,builders, and savvy buyers. This is a rare chance to begin construction immediately with anapproved triplex permit already in hand, avoiding months of planning delays and significantsoft costs. Plans are completed for approximately 3,900-4,000 sqft of total build, designed asthree self-contained residential units featuring efficient layouts, multiple washrooms, andmodern exterior elevations tailored for strong rental appeal. Ideal for investors seekinglong-term hold cash flow, a BRRRR strategy, or builders looking for a ready-to-go project withapprovals secured and equally attractive for a buyer looking to live in one unit and rent theother two for supplemental income. Situated in a desirable neighbourhood close to schools,Montessori and childcare centres, parks, public transit, shopping, and everyday amenities, withconvenient access to downtown St. Catharines, Brock University, the Pen Centre, and majorroutes. A turnkey multi-unit opportunity in a growing rental market (id:61594)
Property Details
|
MLS® Number
|
X13021732 |
|
Property Type
|
Single Family |
|
Community Name
|
458 - Western Hill |
|
Amenities Near By
|
Park, Public Transit |
|
Parking Space Total
|
2 |
Building
|
Bathroom Total
|
1 |
|
Bedrooms Above Ground
|
3 |
|
Bedrooms Total
|
3 |
|
Age
|
51 To 99 Years |
|
Basement Development
|
Unfinished |
|
Basement Type
|
Partial (unfinished) |
|
Construction Style Attachment
|
Detached |
|
Cooling Type
|
Central Air Conditioning |
|
Exterior Finish
|
Stone, Stucco |
|
Fireplace Present
|
Yes |
|
Foundation Type
|
Block |
|
Heating Fuel
|
Natural Gas |
|
Heating Type
|
Forced Air |
|
Stories Total
|
2 |
|
Size Interior
|
1,100 - 1,500 Ft2 |
|
Type
|
House |
|
Utility Water
|
Municipal Water |
Parking
Land
|
Acreage
|
No |
|
Land Amenities
|
Park, Public Transit |
|
Sewer
|
Sanitary Sewer |
|
Size Depth
|
155 Ft ,2 In |
|
Size Frontage
|
38 Ft ,6 In |
|
Size Irregular
|
38.5 X 155.2 Ft |
|
Size Total Text
|
38.5 X 155.2 Ft |
Rooms
| Level |
Type |
Length |
Width |
Dimensions |
|
Second Level |
Bedroom |
2.13 m |
3.66 m |
2.13 m x 3.66 m |
|
Second Level |
Bedroom |
3.66 m |
3.66 m |
3.66 m x 3.66 m |
|
Main Level |
Kitchen |
3.17 m |
3.66 m |
3.17 m x 3.66 m |
|
Main Level |
Living Room |
3.66 m |
5.18 m |
3.66 m x 5.18 m |
|
Main Level |
Bedroom |
2.44 m |
3.35 m |
2.44 m x 3.35 m |
https://www.realtor.ca/real-estate/29631077/42-union-street-st-catharines-western-hill-458-western-hill