439 Alice Avenue Kitchener, Ontario N2M 2A3

3 Bedroom 1 Bathroom 700 - 1,100 ft2
None Other, Not Known

$514,900

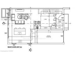
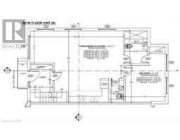
6 UNITS POSSIBLE HERE AS 2 x TRIPLEXES. Approved by the City of Kitchener. Attention developers and investors! 6 units possible here. Redevelopment site for 2 triplex's (built as 2 x semi-detached with 3 units in each - see photo gallery for conceptual rendering). Plans attached as supplement documents. Existing structure is best to be ripped down. This property is brimming with potential-pre-approved by the City of Kitchener for a triplex redevelopment. Situated on a large lot in the heart of Kitchener. The existing home currently offers 3 bedrooms and 1 bathroom, providing a solid foundation for renovation or expansion. Conveniently located near public transit, the LRT, Google, Victoria Park, shopping, and other key amenities, this property presents an incredible opportunity for those looking to invest or undertake a full home renovation. (id:61594)

Property Details

MLS® Number X12845218
Property Type Single Family
Parking Space Total 3

Building

Bathroom Total 1
Bedrooms Above Ground 3
Bedrooms Total 3
Appliances Water Heater
Basement Development Unfinished
Basement Type N/a (unfinished)
Construction Style Attachment Detached
Cooling Type None
Exterior Finish Vinyl Siding
Foundation Type Unknown
Heating Fuel Electric, Other
Heating Type Other, Not Known
Stories Total 2
Size Interior 700 - 1,100 Ft2
Type House
Utility Water Municipal Water

Parking

No Garage

Land

Acreage No
Sewer Sanitary Sewer
Size Frontage 55 Ft ,3 In
Size Irregular 55.3 Ft
Size Total Text 55.3 Ft

https://www.realtor.ca/real-estate/29427622/439-alice-avenue-kitchener

Contact Us

Contact us for more information

Generating Captcha

Your Favourites

 

No Favourites Found