5 Bedroom
4 Bathroom
2,000 - 2,500 ft2
Fireplace
Central Air Conditioning
Forced Air
$1,199,000
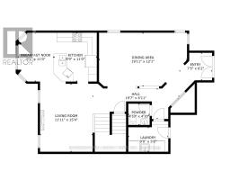
Welcome to 45 Naughton Drive, a beautifully maintained 2,338-square-foot residence offering the perfect blend of space, comfort, and functionality for the modern family. This bright and inviting home features five spacious bedrooms and a thoughtfully designed layout that includes separate family, living, and dining rooms, making it ideal for both daily life and elegant entertaining. Showcasing true pride of ownership, the property has been exceptionally well-cared for and is flooded with natural light through large windows that create a warm, welcoming atmosphere. The open-concept kitchen is both stylish and practical, featuring premium quartz countertops that provide extensive workspace and ample storage. The home includes three full bathrooms on the second floor and a convenient powder room on the main level. Notable exterior updates include brand-new garage doors and a generously sized driveway that easily accommodates four vehicles, a rare and highly coveted feature in this prestigious neighborhood. Perfectly situated in one of Richmond Hill's most sought-after areas, this home offers unparalleled convenience with rapid access to Highways 404 and 407 for a seamless commute to Toronto and the surrounding GTA. Residents will enjoy close proximity to premier recreation at Richmond Green Sports Centre and Park, as well as access to top-rated schools within the York Region District School Board. With Seneca College, York University, high-end shopping, and essential amenities all just minutes away, this property represents an incredible opportunity to live in a thriving, well-connected community. (id:61594)
Property Details
|
MLS® Number
|
N12968542 |
|
Property Type
|
Single Family |
|
Community Name
|
Westbrook |
|
Amenities Near By
|
Place Of Worship, Public Transit, Schools |
|
Community Features
|
Community Centre |
|
Equipment Type
|
Water Heater, Furnace |
|
Features
|
Flat Site |
|
Parking Space Total
|
6 |
|
Rental Equipment Type
|
Water Heater, Furnace |
Building
|
Bathroom Total
|
4 |
|
Bedrooms Above Ground
|
5 |
|
Bedrooms Total
|
5 |
|
Age
|
16 To 30 Years |
|
Amenities
|
Fireplace(s) |
|
Appliances
|
Water Heater, Water Meter, Dishwasher, Dryer, Hood Fan, Stove, Washer, Refrigerator |
|
Basement Development
|
Unfinished |
|
Basement Type
|
N/a (unfinished) |
|
Construction Style Attachment
|
Detached |
|
Cooling Type
|
Central Air Conditioning |
|
Exterior Finish
|
Brick |
|
Fireplace Present
|
Yes |
|
Fireplace Total
|
1 |
|
Foundation Type
|
Concrete |
|
Half Bath Total
|
1 |
|
Heating Fuel
|
Natural Gas |
|
Heating Type
|
Forced Air |
|
Stories Total
|
2 |
|
Size Interior
|
2,000 - 2,500 Ft2 |
|
Type
|
House |
|
Utility Water
|
Municipal Water |
Parking
Land
|
Acreage
|
No |
|
Fence Type
|
Fenced Yard |
|
Land Amenities
|
Place Of Worship, Public Transit, Schools |
|
Sewer
|
Sanitary Sewer |
|
Size Depth
|
109 Ft ,10 In |
|
Size Frontage
|
39 Ft ,4 In |
|
Size Irregular
|
39.4 X 109.9 Ft |
|
Size Total Text
|
39.4 X 109.9 Ft|under 1/2 Acre |
|
Zoning Description
|
R4 |
Utilities
|
Cable
|
Installed |
|
Electricity
|
Installed |
|
Sewer
|
Installed |
https://www.realtor.ca/real-estate/29570259/45-naughton-drive-richmond-hill-westbrook-westbrook