45a Howard Street Hagersville, Ontario N0A 1H0

3 Bedroom 3 Bathroom 1,887 ft2
2 Level Fireplace Central Air Conditioning Forced Air

$659,900

Take advantage of the new HST rebate with this incredible opportunity to own a brand-new home at a reduced price. Stylish finishes, functional layout, and exceptional value make this a must-see. This stunning, brand new 1,887 sq. ft. semi-detached home has been crafted by renowned builder Venture Homes and is situated in an established Hagersville neighbourhood. Featuring a bright and spacious main floor with engineered hardwood, this home offers large principal rooms perfect for entertaining and family life. The chef’s kitchen boasts quartz countertops, an island, stylish backsplash, under-cabinet lighting, and soft-close cabinetry. Upstairs, three oversized bedrooms await, including a primary suite with a huge walk-in closet and a convenient ensuite bath. Enjoy the practicality of a second-floor laundry room and a total of three modern bathrooms. Additional upgrades include central air, an insulated garage with automatic opener and a 10’ wide door, a covered front porch, elegant wood railings with steel balustrades, 5” baseboards throughout and ideally situated on a 140’ deep lot offering rear access from a rear alley. Includes 4 appliances, Tankless water heater, back deck and insulated garage with garage door opener. Quick closing is available. Attractive financing guaranteed 3.99% for 3-5 yr mortgages 25 yr amortization OAC. The home is Tarion-certified for peace of mind, and the location is unbeatable—close to schools, shopping, and the hospital. Move-in ready with no disappointments! (id:61594)

Property Details

MLS® Number 40801057
Property Type Single Family
Amenities Near By Golf Nearby, Hospital, Place Of Worship, Schools
Communication Type High Speed Internet
Community Features Community Centre
Features Automatic Garage Door Opener
Parking Space Total 5

Building

Bathroom Total 3
Bedrooms Above Ground 3
Bedrooms Total 3
Appliances Garage Door Opener
Architectural Style 2 Level
Basement Development Unfinished
Basement Type Crawl Space (unfinished)
Constructed Date 2025
Construction Style Attachment Semi-detached
Cooling Type Central Air Conditioning
Exterior Finish Stone, Vinyl Siding
Fireplace Fuel Electric
Fireplace Present Yes
Fireplace Total 1
Fireplace Type Other - See Remarks
Foundation Type Poured Concrete
Half Bath Total 1
Heating Fuel Natural Gas
Heating Type Forced Air
Stories Total 2
Size Interior 1,887 Ft2
Type House
Utility Water Municipal Water

Parking

Attached Garage

Land

Access Type Road Access
Acreage No
Land Amenities Golf Nearby, Hospital, Place Of Worship, Schools
Sewer Municipal Sewage System
Size Depth 140 Ft
Size Frontage 33 Ft
Size Total Text Under 1/2 Acre
Zoning Description H A9

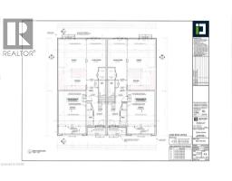
Rooms

Level Type Dimensions
Second Level Other 6'3'' x 6'0''
Second Level Laundry Room 5'0'' x 8'6''
Second Level 4pc Bathroom Measurements not available
Second Level Bedroom 11'0'' x 11'6''
Second Level Bedroom 12'6'' x 11'6''
Second Level Full Bathroom 8'6'' x 6'0''
Second Level Primary Bedroom 14'3'' x 14'7''
Basement Utility Room Measurements not available
Main Level Living Room 13'9'' x 9'7''
Main Level Dining Room 13'9'' x 13'8''
Main Level Kitchen 11'2'' x 13'8''
Main Level 2pc Bathroom 7'6'' x 3'1''
Main Level Foyer 10'8'' x 5'10''

Utilities

Electricity Available
Natural Gas Available
Telephone Available

https://www.realtor.ca/real-estate/29291871/45a-howard-street-hagersville

Contact Us

Contact us for more information

Generating Captcha

Your Favourites

 

No Favourites Found