4 Bedroom
4 Bathroom
1,000 - 1,199 ft2
Central Air Conditioning
Forced Air
$629,000Maintenance, Heat, Common Area Maintenance, Insurance, Water
$693.57 Monthly
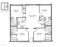
High-Performing Student Rental Investment Near the University of GuelphThis purpose-built 4-bedroom, 4-bathroom condo presents a compelling investment opportunity in one of Guelph's most dependable rental markets. Ideally located in the city's sought-after south end with direct transit access to the University of Guelph, the property benefits from consistently strong student demand and excellent long-term rental stability. Each bedroom is designed with its own private ensuite, a highly desirable layout that allows for premiumper-room leasing while minimizing vacancy risk and enhancing tenant satisfaction.The unit features modern, low-maintenance finishes, including quartz countertops and carpet-free laminate flooring, making it well-suited for long-term durability and reduced operating costs. A recently updated in-suite washer adds further practicality and appeal. Beyond the unit itself, residents have access to an impressive range of amenities, including secure entry, concierge service, a fitness center, 24-hour Wi-Fi study rooms, media and gaming lounges, and a rooftop terrace overlooking conservation lands-features that significantly enhance the property's rental appeal and tenant retention.The unit currently has one vacant room the other (3) are leased for:Room 1 leased for $1,150 (utilities included) rent ends April 30, 2027 Room 2 Leased for $1,250 (utilities included) rent ends August 30, 2026 Room 3 Leased for $1,250 (utilities included) rent ends April 30, 2027 Parking spot is leased for $150/month. (id:61594)
Property Details
|
MLS® Number
|
X12969552 |
|
Property Type
|
Single Family |
|
Community Name
|
Kortright West |
|
Community Features
|
Pets Not Allowed |
|
Equipment Type
|
Furnace |
|
Features
|
Carpet Free |
|
Parking Space Total
|
1 |
|
Rental Equipment Type
|
Furnace |
Building
|
Bathroom Total
|
4 |
|
Bedrooms Above Ground
|
4 |
|
Bedrooms Total
|
4 |
|
Appliances
|
Dryer, Washer |
|
Basement Type
|
None |
|
Cooling Type
|
Central Air Conditioning |
|
Exterior Finish
|
Concrete |
|
Heating Fuel
|
Natural Gas |
|
Heating Type
|
Forced Air |
|
Size Interior
|
1,000 - 1,199 Ft2 |
|
Type
|
Apartment |
Parking
Land
Rooms
| Level |
Type |
Length |
Width |
Dimensions |
|
Main Level |
Living Room |
3.45 m |
2.97 m |
3.45 m x 2.97 m |
|
Main Level |
Dining Room |
2.97 m |
2.82 m |
2.97 m x 2.82 m |
|
Main Level |
Kitchen |
2.29 m |
2.16 m |
2.29 m x 2.16 m |
|
Main Level |
Primary Bedroom |
3.02 m |
3.02 m |
3.02 m x 3.02 m |
|
Main Level |
Bedroom 2 |
3.01 m |
3.02 m |
3.01 m x 3.02 m |
|
Main Level |
Bedroom 3 |
3.02 m |
3.02 m |
3.02 m x 3.02 m |
|
Main Level |
Bedroom 4 |
3.02 m |
3.02 m |
3.02 m x 3.02 m |
https://www.realtor.ca/real-estate/29571478/502-1219-gordon-street-guelph-kortright-west-kortright-west