Charming 3-bedroom, 1-bathroom single-family home on a generous 64 x 99 ft lot in the desirable Meadowlands/Crestview neighbourhood. Perfect opportunity for first-time buyers, contractors, or developers looking to enter the market or add value. This home features new windows and a bright, functional layout with plenty of potential to customize. The high and dry basement offers excellent storage or future development possibilities. Spacious lot provides room to expand, renovate, or rebuild. Roof 2014, furnace 2024, windows 2025. Conveniently located near schools, parks, shopping, and transit and green space. A solid investment in a growing area-don't miss the opportunity to be the second owner of this home. Offers 5 pm on Tuesday April 21 ***OPEN HOUSES THURSDAY APRIL 16 10:00-12:00 and SUNDAY APRIL 19 2:00-4:00*** (id:61594)
2:00 pm
Ends at:4:00 pm
| MLS® Number | X13003646 |
| Property Type | Single Family |
| Community Name | 7302 - Meadowlands/Crestview |
| Equipment Type | Water Heater |
| Features | Carpet Free |
| Parking Space Total | 4 |
| Rental Equipment Type | Water Heater |
| Bathroom Total | 1 |
| Bedrooms Above Ground | 3 |
| Bedrooms Total | 3 |
| Age | 51 To 99 Years |
| Appliances | Dryer, Stove, Washer, Refrigerator |
| Architectural Style | Bungalow |
| Basement Type | Full |
| Construction Style Attachment | Detached |
| Cooling Type | None |
| Exterior Finish | Stone, Aluminum Siding |
| Fireplace Present | Yes |
| Foundation Type | Poured Concrete |
| Stories Total | 1 |
| Size Interior | 700 - 1,100 Ft2 |
| Type | House |
| Utility Water | Municipal Water |
| Attached Garage | |
| Garage |
| Acreage | No |
| Sewer | Sanitary Sewer |
| Size Depth | 99 Ft ,10 In |
| Size Frontage | 64 Ft ,10 In |
| Size Irregular | 64.9 X 99.9 Ft |
| Size Total Text | 64.9 X 99.9 Ft |
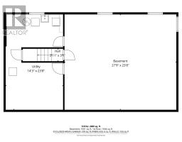
| Level | Type | Length | Width | Dimensions |
|---|---|---|---|---|
| Lower Level | Utility Room | 23.8 m | 14.3 m | 23.8 m x 14.3 m |
| Lower Level | Recreational, Games Room | 27.9 m | 23.8 m | 27.9 m x 23.8 m |
| Main Level | Living Room | 17.3 m | 11.9 m | 17.3 m x 11.9 m |
| Main Level | Dining Room | 12 m | 8.3 m | 12 m x 8.3 m |
| Main Level | Kitchen | 12 m | 8.2 m | 12 m x 8.2 m |
| Main Level | Primary Bedroom | 13.9 m | 11.8 m | 13.9 m x 11.8 m |
| Main Level | Bedroom 2 | 11.9 m | 10.2 m | 11.9 m x 10.2 m |
| Main Level | Bedroom 3 | 11.8 m | 7.8 m | 11.8 m x 7.8 m |
| Main Level | Bathroom | 8.6 m | 7 m | 8.6 m x 7 m |
https://www.realtor.ca/real-estate/29612098/57-sullivan-avenue-ottawa-7302-meadowlandscrestview
Contact us for more information