3 Bedroom
4 Bathroom
2,000 - 2,500 ft2
Fireplace
Central Air Conditioning
Forced Air
Landscaped
$914,800
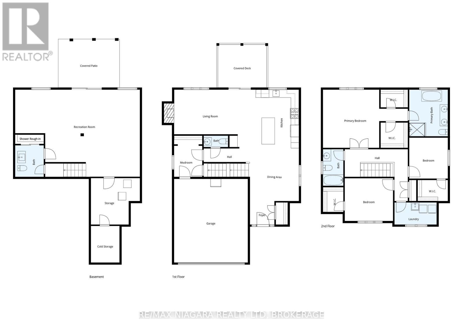
FULLY FINISHED WALK-OUT BASEMENT! Located in Niagara Falls' desirable south end, 5703 Osprey Ave offers approximately 2,900 sq. ft. of finished living space in a .in a stylish and functional 2-storey family home. With 3 bedrooms, 4 bathrooms, a double car garage, and parking for 6 vehicles, this home is designed for real life. The main floor offers a practical layout with bright, polished living spaces, a convenient mud room, and a kitchen with a walk-out to a covered deck, creating an easy connection between indoor living and outdoor enjoyment. Upstairs, all three bedrooms feature walk-in closets, while the primary suite offers his-and-hers walk-in closets and a spacious 5-piece ensuite with a tiled glass shower and soaker tub. Second-floor laundry adds even more everyday convenience.The finished walk-out basement is the feature that truly sets this home apart. Brightened by windows and offering direct access to the concrete patio, it provides the kind of additional living space that can adapt to your needs, whether for family time, entertaining, or a play area. There is also plenty of storage, a cold cellar, and a bathroom with a shower rough-in tucked into the closet for future potential. Outside, the covered deck and lower patio extend the living space and create a great setup for relaxing or entertaining. Close to Costco, Walmart, grocery stores, restaurants, and other everyday amenities, this move-in ready home offers comfort, function, and a location that makes daily life easier. Please note, location of above ground pool will be sodded in late spring. (id:61594)
Property Details
|
MLS® Number
|
X12914738 |
|
Property Type
|
Single Family |
|
Community Name
|
219 - Forestview |
|
Equipment Type
|
Water Heater |
|
Parking Space Total
|
6 |
|
Rental Equipment Type
|
Water Heater |
|
Structure
|
Deck, Patio(s) |
Building
|
Bathroom Total
|
4 |
|
Bedrooms Above Ground
|
3 |
|
Bedrooms Total
|
3 |
|
Age
|
6 To 15 Years |
|
Basement Development
|
Finished |
|
Basement Features
|
Walk Out |
|
Basement Type
|
N/a (finished) |
|
Construction Style Attachment
|
Detached |
|
Cooling Type
|
Central Air Conditioning |
|
Exterior Finish
|
Brick, Vinyl Siding |
|
Fireplace Present
|
Yes |
|
Fireplace Total
|
1 |
|
Foundation Type
|
Poured Concrete |
|
Half Bath Total
|
2 |
|
Heating Fuel
|
Natural Gas |
|
Heating Type
|
Forced Air |
|
Stories Total
|
2 |
|
Size Interior
|
2,000 - 2,500 Ft2 |
|
Type
|
House |
|
Utility Water
|
Municipal Water |
Parking
Land
|
Acreage
|
No |
|
Landscape Features
|
Landscaped |
|
Sewer
|
Sanitary Sewer |
|
Size Depth
|
111 Ft ,6 In |
|
Size Frontage
|
43 Ft |
|
Size Irregular
|
43 X 111.5 Ft |
|
Size Total Text
|
43 X 111.5 Ft |
|
Zoning Description
|
A, R1e |
Rooms
| Level |
Type |
Length |
Width |
Dimensions |
|
Second Level |
Primary Bedroom |
4.27 m |
4.5 m |
4.27 m x 4.5 m |
|
Second Level |
Bedroom 2 |
3.12 m |
3.05 m |
3.12 m x 3.05 m |
|
Second Level |
Bedroom 3 |
3.61 m |
3.23 m |
3.61 m x 3.23 m |
|
Second Level |
Laundry Room |
3.25 m |
1.83 m |
3.25 m x 1.83 m |
|
Basement |
Recreational, Games Room |
9.39 m |
6.57 m |
9.39 m x 6.57 m |
|
Basement |
Bathroom |
2.38 m |
2.16 m |
2.38 m x 2.16 m |
|
Basement |
Utility Room |
3.5 m |
3.69 m |
3.5 m x 3.69 m |
|
Basement |
Cold Room |
2.75 m |
2.16 m |
2.75 m x 2.16 m |
|
Main Level |
Foyer |
1.98 m |
1.68 m |
1.98 m x 1.68 m |
|
Main Level |
Dining Room |
3.81 m |
3.51 m |
3.81 m x 3.51 m |
|
Main Level |
Kitchen |
4.7 m |
4.27 m |
4.7 m x 4.27 m |
|
Main Level |
Living Room |
5 m |
3.43 m |
5 m x 3.43 m |
|
Main Level |
Mud Room |
3.28 m |
2.13 m |
3.28 m x 2.13 m |
|
Main Level |
Bathroom |
1.98 m |
0.86 m |
1.98 m x 0.86 m |
https://www.realtor.ca/real-estate/29508566/5703-osprey-avenue-niagara-falls-forestview-219-forestview