578 Balsam Poplar Street Waterloo, Ontario N2V 0H6

5 Bedroom 5 Bathroom 3,405 ft2
2 Level Central Air Conditioning Forced Air

$1,349,900

Soon to be built at 578 Balsam Poplar Street in Waterloo, this thoughtfully designed 4+1 bedroom, 5 bathroom home blends modern design with quality craftsmanship on a prominent corner lot. The exterior features a refined mix of stone, brick, and stucco, with brick continuing along the sides and rear for a cohesive finish. Insulated garage doors, black or taupe exterior windows, and a concrete driveway enhance the home’s contemporary presence. Inside, engineered hardwood flooring runs throughout the main level, complemented by 8-foot doors that add to the sense of scale. The open concept living and dining area flows seamlessly into a spacious kitchen anchored by a large island and outfitted with quartz countertops and Fisher & Paykel appliances. Quartz surfaces continue throughout the home, offering both style and durability. An oak hardwood staircase provides a timeless focal point. A practical side entrance leads into a well-designed mudroom with convenient access to the home, while a private office that can easily function as a bedroom and a 3-piece bathroom complete the main floor. Upstairs, four generously sized bedrooms provide comfortable accommodations. Two share a bathroom, one features its own ensuite, and the primary suite includes a large walk-in closet and a private ensuite bath. The fully finished basement offers impressive 9-foot ceilings, a spacious recreation room, an additional bedroom, and a 3-piece bathroom, creating flexible space for extended family or guests. With a finished basement, double car garage, and quality finishes throughout, this is a rare opportunity to own a newly built home in a sought-after Waterloo neighbourhood. (id:61594)

Open House

This property has open houses!

May
9
Saturday
Starts at:

1:00 pm

Ends at:

4:00 pm

May
10
Sunday
Starts at:

1:00 pm

Ends at:

4:00 pm

May
13
Wednesday
Starts at:

4:00 pm

Ends at:

7:00 pm

May
16
Saturday
Starts at:

1:00 pm

Ends at:

4:00 pm

Property Details

MLS® Number 40806537
Property Type Single Family
Amenities Near By Park, Place Of Worship, Playground, Schools
Community Features Community Centre, School Bus
Parking Space Total 4

Building

Bathroom Total 5
Bedrooms Above Ground 4
Bedrooms Below Ground 1
Bedrooms Total 5
Architectural Style 2 Level
Basement Development Finished
Basement Type Full (finished)
Construction Style Attachment Detached
Cooling Type Central Air Conditioning
Exterior Finish Brick
Foundation Type Poured Concrete
Heating Fuel Natural Gas
Heating Type Forced Air
Stories Total 2
Size Interior 3,405 Ft2
Type House
Utility Water Municipal Water

Parking

Attached Garage

Land

Access Type Road Access
Acreage No
Land Amenities Park, Place Of Worship, Playground, Schools
Sewer Municipal Sewage System
Size Depth 85 Ft
Size Frontage 48 Ft
Size Total Text Under 1/2 Acre
Zoning Description R6

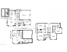
Rooms

Level Type Dimensions
Second Level 5pc Bathroom Measurements not available
Second Level 4pc Bathroom Measurements not available
Second Level Primary Bedroom 12'3'' x 14'0''
Second Level Bedroom 13'0'' x 11'0''
Second Level Bedroom 12'6'' x 9'5''
Second Level Bedroom 11'6'' x 12'6''
Second Level 4pc Bathroom Measurements not available
Basement 3pc Bathroom Measurements not available
Basement Bedroom 10'6'' x 10'0''
Basement Recreation Room 20'0'' x 17'0''
Main Level Great Room 16'2'' x 13'0''
Main Level Dining Room 16'2'' x 10'0''
Main Level Kitchen 16'2'' x 9'0''
Main Level Office 12'6'' x 9'6''
Main Level 3pc Bathroom Measurements not available

https://www.realtor.ca/real-estate/29383929/578-balsam-poplar-street-waterloo

Contact Us

Contact us for more information

Generating Captcha

Your Favourites

 

No Favourites Found