3 Bedroom
2 Bathroom
1,100 - 1,500 ft2
Bungalow
Fireplace
Central Air Conditioning, Air Exchanger
Forced Air
$473,900
NEW PRICE!!! Located on a beautiful corner lot in a cozy neighbourhood, this ready to move-in home is ideal for first-time buyers, growing families, or retirees alike. As you enter through the front door, you're welcomed by a bright and inviting living room offering a comfortable space for the whole family to relax. The home then opens to the kitchen and dining area, perfect for everyday living and casual entertaining. The kitchen features beautiful granite countertops and ample cabinet space. From the dining room, step out onto the lovely deck, making outdoor dining and summer BBQs both easy and enjoyable. The main floor also offers three bedrooms and a convenient 3-piece bathroom. Downstairs, the partially finished basement includes a spacious family room and a second bathroom with a laundry area. A workshop space and additional storage provide plenty of room for hobbies and organization. Outside, the partly enclosed carport offers year-round protection for your vehicle from winter snow and summer sun. Don't miss the opportunity to view this charming family home. Call today to book your private showing. (id:61594)
Property Details
|
MLS® Number
|
X13008230 |
|
Property Type
|
Single Family |
|
Community Name
|
609 - Alfred |
|
Features
|
Sump Pump |
|
Parking Space Total
|
5 |
|
Structure
|
Deck, Shed |
Building
|
Bathroom Total
|
2 |
|
Bedrooms Above Ground
|
3 |
|
Bedrooms Total
|
3 |
|
Amenities
|
Fireplace(s) |
|
Appliances
|
Water Heater, Dryer, Stove, Washer, Refrigerator |
|
Architectural Style
|
Bungalow |
|
Basement Development
|
Partially Finished |
|
Basement Type
|
Full (partially Finished) |
|
Construction Style Attachment
|
Detached |
|
Cooling Type
|
Central Air Conditioning, Air Exchanger |
|
Exterior Finish
|
Brick, Vinyl Siding |
|
Fireplace Present
|
Yes |
|
Foundation Type
|
Poured Concrete |
|
Heating Fuel
|
Natural Gas |
|
Heating Type
|
Forced Air |
|
Stories Total
|
1 |
|
Size Interior
|
1,100 - 1,500 Ft2 |
|
Type
|
House |
|
Utility Water
|
Municipal Water |
Parking
Land
|
Acreage
|
No |
|
Fence Type
|
Fenced Yard |
|
Sewer
|
Sanitary Sewer |
|
Size Depth
|
85 Ft ,3 In |
|
Size Frontage
|
80 Ft ,6 In |
|
Size Irregular
|
80.5 X 85.3 Ft |
|
Size Total Text
|
80.5 X 85.3 Ft |
Rooms
| Level |
Type |
Length |
Width |
Dimensions |
|
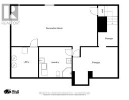
Basement |
Utility Room |
3.327 m |
2.81 m |
3.327 m x 2.81 m |
|
Basement |
Workshop |
4.975 m |
3.397 m |
4.975 m x 3.397 m |
|
Basement |
Family Room |
9.466 m |
4.416 m |
9.466 m x 4.416 m |
|
Basement |
Bathroom |
3.523 m |
3.236 m |
3.523 m x 3.236 m |
|
Main Level |
Foyer |
2.981 m |
1.383 m |
2.981 m x 1.383 m |
|
Main Level |
Living Room |
3.759 m |
3.64 m |
3.759 m x 3.64 m |
|
Main Level |
Kitchen |
2.882 m |
2.86 m |
2.882 m x 2.86 m |
|
Main Level |
Dining Room |
2.986 m |
2.382 m |
2.986 m x 2.382 m |
|
Main Level |
Bathroom |
3.463 m |
1.807 m |
3.463 m x 1.807 m |
|
Main Level |
Primary Bedroom |
3.478 m |
3.443 m |
3.478 m x 3.443 m |
|
Main Level |
Bedroom 2 |
3.273 m |
3.099 m |
3.273 m x 3.099 m |
|
Main Level |
Bedroom 3 |
3.439 m |
2.621 m |
3.439 m x 2.621 m |
https://www.realtor.ca/real-estate/29615587/60-richard-street-alfred-and-plantagenet-609-alfred