3 Bedroom
2 Bathroom
1,000 - 1,199 ft2
None
Baseboard Heaters
$499,000Maintenance, Common Area Maintenance
$328.75 Monthly
Premium Location Condo Townhouse including a Garage & Backyard *with no neighbours behind. Welcome to the perfect blend of comfort, convenience and community. Tucked away in a very desirable neighbourhood, this 3 bedroom, 2 bathroom condo townhouse that offers the space of a family home with the ease of condo living - where your weekends are spent enjoying life, not mowing lawns. Step inside and you'll immediately feel the warmth of a bright, inviting main floor. The updated kitchen features a granite sink, large format tile and a cheerful breakfast area framed by a large window that fills the space with morning light - the perfect spot for coffee and conversation. The dining area opens directly to the deck, patio and yard where the trees create a quiet, natural backdrop. The living room is airy and welcoming, ideal for movie nights or hosting friends, with new flooring throughout the home adding a fresh, modern feel. Upstairs, you'll find three comfortable bedrooms and a full bathroom with a tub, perfect for relaxing at the end of the day. The large finished lower level adds even more versatility - Complete with a 3-piece bathroom and laundry area, the open concept rec. room is a great space for guests, a home office or a cozy family retreat. Outside, the rear yard backs onto Parkinson School yard with a huge privacy hedge in between, offering privacy and no neighbours behind. With this townhouse you'll have more time to enjoy nearby parks, schools & shopping - Everything you need is just steps away, or just or close the door and travel w/ confidence! This home is more than just a place to live - It's a lifestyle of ease, connection and everyday comfort...Welcome home. (id:61594)
Property Details
|
MLS® Number
|
W12468928 |
|
Property Type
|
Single Family |
|
Community Name
|
Orangeville |
|
Amenities Near By
|
Public Transit |
|
Community Features
|
Pets Allowed With Restrictions |
|
Equipment Type
|
Water Heater |
|
Features
|
Ravine, Carpet Free |
|
Parking Space Total
|
2 |
|
Rental Equipment Type
|
Water Heater |
|
Structure
|
Deck, Porch |
Building
|
Bathroom Total
|
2 |
|
Bedrooms Above Ground
|
3 |
|
Bedrooms Total
|
3 |
|
Appliances
|
Water Treatment, Water Meter, Dishwasher, Dryer, Stove, Washer, Water Softener, Window Coverings, Refrigerator |
|
Basement Development
|
Finished |
|
Basement Type
|
Full (finished) |
|
Cooling Type
|
None |
|
Exterior Finish
|
Brick, Vinyl Siding |
|
Flooring Type
|
Tile, Laminate |
|
Heating Fuel
|
Electric |
|
Heating Type
|
Baseboard Heaters |
|
Stories Total
|
2 |
|
Size Interior
|
1,000 - 1,199 Ft2 |
|
Type
|
Row / Townhouse |
Parking
Land
|
Acreage
|
No |
|
Land Amenities
|
Public Transit |
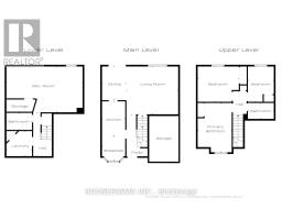
Rooms
| Level |
Type |
Length |
Width |
Dimensions |
|
Lower Level |
Recreational, Games Room |
4.28 m |
7.1 m |
4.28 m x 7.1 m |
|
Lower Level |
Laundry Room |
2.34 m |
2.4 m |
2.34 m x 2.4 m |
|
Main Level |
Kitchen |
3.23 m |
2.15 m |
3.23 m x 2.15 m |
|
Main Level |
Eating Area |
2.3 m |
2.17 m |
2.3 m x 2.17 m |
|
Main Level |
Dining Room |
3.14 m |
2.26 m |
3.14 m x 2.26 m |
|
Main Level |
Living Room |
4.46 m |
4.84 m |
4.46 m x 4.84 m |
|
Upper Level |
Primary Bedroom |
4.6 m |
3.18 m |
4.6 m x 3.18 m |
|
Upper Level |
Bedroom 2 |
3.29 m |
3.84 m |
3.29 m x 3.84 m |
|
Upper Level |
Bedroom 3 |
3.3 m |
2.43 m |
3.3 m x 2.43 m |
https://www.realtor.ca/real-estate/29003992/61-31-parkview-drive-orangeville-orangeville