Maintenance, Insurance, Heat, Water
$759.23 MonthlyHIGHLY SOUGHT AFTER STAMFORD PLACE! Fantastic Stamford Centre location for this beautifully updated and meticulously maintained 2 bedroom corner unit. This unit features 2 generous sized bedrooms with big & bright windows, updated 4-piece bath with updated tub & shower, open concept living room, updated eat-in kitchen and over sized balcony with west facing views. This unit offers ductless air conditioning, 1 parking space included and 1 locker included. Monthly condo fees include hot water heating, water, common elements, building insurance and parking. Building amenities include party room and private gym area. All kitchen appliances plus in-suite stackable washer & dryer included. You can pick your closing date! Walking distance to groceries, restaurants, shopping, schools, parks and easy access to the QEW highway and other amenities. (id:61594)
| MLS® Number | 40804228 |
| Property Type | Single Family |
| Amenities Near By | Public Transit, Schools, Shopping |
| Features | Balcony |
| Parking Space Total | 1 |
| Storage Type | Locker |
| Bathroom Total | 1 |
| Bedrooms Above Ground | 2 |
| Bedrooms Total | 2 |
| Amenities | Party Room |
| Appliances | Dishwasher, Dryer, Refrigerator, Stove, Washer |
| Basement Type | None |
| Construction Style Attachment | Attached |
| Cooling Type | Wall Unit |
| Exterior Finish | Stucco |
| Heating Type | Hot Water Radiator Heat |
| Stories Total | 1 |
| Size Interior | 900 Ft2 |
| Type | Apartment |
| Utility Water | Municipal Water |
| Visitor Parking |
| Access Type | Highway Nearby |
| Acreage | No |
| Land Amenities | Public Transit, Schools, Shopping |
| Sewer | Municipal Sewage System |
| Size Total Text | Unknown |
| Zoning Description | R5c |
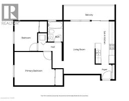
| Level | Type | Length | Width | Dimensions |
|---|---|---|---|---|
| Main Level | 4pc Bathroom | Measurements not available | ||
| Main Level | Porch | 18'9'' x 4'10'' | ||
| Main Level | Bedroom | 10'10'' x 8'3'' | ||
| Main Level | Primary Bedroom | 12'5'' x 13'8'' | ||
| Main Level | Eat In Kitchen | 15'5'' x 7'0'' | ||
| Main Level | Living Room | 11'5'' x 19'2'' | ||
| Main Level | Foyer | 6'2'' x 5'2'' |
https://www.realtor.ca/real-estate/29344439/6390-huggins-street-unit-209-niagara-falls
Contact us for more information