3 Bedroom
2 Bathroom
1,445 ft2
Bungalow
Fireplace
Central Air Conditioning
Forced Air
Acreage
Landscaped
$1,399,600
Exceptional multi-generational country property offering a rare combination of space and privacy on a 1.37 acre lot. The estate includes an updated detached 2-bedroom + loft home, a self-contained 1-bedroom accessory dwelling (ADU), and an impressive ~30’ x 40’ workshop/garage. The primary residence is a thoughtfully designed bungaloft blending open-concept living with everyday functionality. The primary bedroom w/ensuite, and second bedroom are conveniently located on the main level, while the loft provides a third bedroom or a flexible living space for growing family needs. Natural light and a practical layout create a warm, welcoming atmosphere throughout. Quality updates include custom built-in cabinetry, modern kitchen with quartz countertops and S.S. appliances, 4 piece bathroom with stand alone tub and separate shower, gas fireplace, updated windows and doors and newer steel roof. The dining area has a patio door leading to a spacious wood deck with a hot tub - perfect for entertaining and unwinding. Enhancing the property’s versatility is a fully detached 1-bedroom accessory bungalow (ADU). Ideal for multi-generational living, guest accommodations, or rental income, this secondary dwelling offers privacy and independence with kitchenette, 3-piece bath, in-floor heating and wood stove. The detached workshop/garage is perfect for hobbyists, tradespeople, or car enthusiasts. Features include a gas furnace, kitchenette with gas stove, refrigerator and range hood, electric fireplace, walk-up attic storage and a patio door accessing the yard. Established perennial gardens, vegetable garden, mature trees all anchored by a private swim pond enjoyed year-round for swimming and skating, complete with dock, sand beach and cabana. This property delivers rural living without compromise. Take the multimedia 360 tour and arrange a time to come take a look! More details available upon request. (id:61594)
Property Details
|
MLS® Number
|
40799141 |
|
Property Type
|
Single Family |
|
Community Features
|
School Bus |
|
Equipment Type
|
Water Heater |
|
Features
|
Crushed Stone Driveway, Country Residential, Sump Pump, Automatic Garage Door Opener, Private Yard |
|
Parking Space Total
|
12 |
|
Rental Equipment Type
|
Water Heater |
|
Structure
|
Shed, Porch |
Building
|
Bathroom Total
|
2 |
|
Bedrooms Above Ground
|
3 |
|
Bedrooms Total
|
3 |
|
Appliances
|
Central Vacuum, Dishwasher, Dryer, Refrigerator, Water Softener, Washer, Range - Gas, Microwave Built-in, Hood Fan, Hot Tub |
|
Architectural Style
|
Bungalow |
|
Basement Development
|
Unfinished |
|
Basement Type
|
Partial (unfinished) |
|
Construction Material
|
Wood Frame |
|
Construction Style Attachment
|
Detached |
|
Cooling Type
|
Central Air Conditioning |
|
Exterior Finish
|
Vinyl Siding, Wood, Steel |
|
Fireplace Present
|
Yes |
|
Fireplace Total
|
1 |
|
Fixture
|
Ceiling Fans |
|
Foundation Type
|
Block |
|
Half Bath Total
|
1 |
|
Heating Fuel
|
Natural Gas |
|
Heating Type
|
Forced Air |
|
Stories Total
|
1 |
|
Size Interior
|
1,445 Ft2 |
|
Type
|
House |
|
Utility Water
|
Drilled Well |
Parking
Land
|
Access Type
|
Highway Nearby |
|
Acreage
|
Yes |
|
Fence Type
|
Partially Fenced |
|
Landscape Features
|
Landscaped |
|
Sewer
|
Septic System |
|
Size Frontage
|
163 Ft |
|
Size Irregular
|
1.374 |
|
Size Total
|
1.374 Ac|1/2 - 1.99 Acres |
|
Size Total Text
|
1.374 Ac|1/2 - 1.99 Acres |
|
Surface Water
|
Ponds |
|
Zoning Description
|
Re |
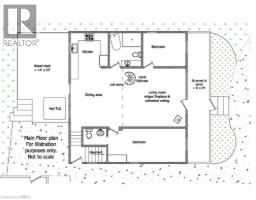
Rooms
| Level |
Type |
Length |
Width |
Dimensions |
|
Second Level |
Bedroom |
|
|
13'9'' x 10'4'' |
|
Basement |
Wine Cellar |
|
|
8'6'' x 5'0'' |
|
Basement |
Storage |
|
|
25'0'' x 5'0'' |
|
Basement |
Utility Room |
|
|
34'8'' x 10'6'' |
|
Main Level |
Full Bathroom |
|
|
Measurements not available |
|
Main Level |
Porch |
|
|
34'4'' x 6'0'' |
|
Main Level |
4pc Bathroom |
|
|
Measurements not available |
|
Main Level |
Bedroom |
|
|
11'8'' x 9'2'' |
|
Main Level |
Primary Bedroom |
|
|
21'3'' x 9'2'' |
|
Main Level |
Living Room |
|
|
17'3'' x 16'0'' |
|
Main Level |
Kitchen |
|
|
9'3'' x 8'3'' |
|
Main Level |
Dining Room |
|
|
14'3'' x 16'0'' |
https://www.realtor.ca/real-estate/29401662/686577-highway-2-princeton