4 Bedroom
3 Bathroom
1,100 - 1,500 ft2
Fireplace
Central Air Conditioning
Forced Air
$699,900
FANTASTIC OPPORTUNITY with over $100,000 in upgrades and a top-notch in-law suite! This North Welland 4-level backsplit offers room to grow, plus a bonus sunroom that creates a relaxing, cottage-like escape right at home.The main floor showcases a seamless flow between the living room, dining area, and upgraded kitchen, complete with granite countertops and a stylish backsplash. Upstairs, you'll find three well-appointed bedrooms, including a spacious primary retreat, along with a tastefully renovated 4-piece bathroom.The lower level is designed for entertaining, featuring a cozy family room with a gas fireplace, a bar area, and an updated 3-piece bathroom. A convenient walk-up leads to the sunroom-an inviting extension of the home that adds valuable living space while enhancing its separate access potential.The basement has been thoughtfully finished into a self-contained suite, offering an open-concept living area, full kitchen, an additional bedroom, and a 3-piece bathroom-perfect for extended family or potential rental income.Step outside to a fully fenced backyard with a patio ideal for gatherings, along with a storage shed for added convenience. A single attached garage and private double paved driveway complete the package.Located in a family-friendly North Welland neighbourhood close to schools, parks, and shopping, this home delivers the perfect blend of comfort, versatility, and opportunity. (id:61594)
Property Details
|
MLS® Number
|
X13012810 |
|
Property Type
|
Single Family |
|
Community Name
|
769 - Prince Charles |
|
Amenities Near By
|
Park, Public Transit |
|
Equipment Type
|
Water Heater |
|
Features
|
In-law Suite |
|
Parking Space Total
|
5 |
|
Rental Equipment Type
|
Water Heater |
|
Structure
|
Porch, Shed |
Building
|
Bathroom Total
|
3 |
|
Bedrooms Above Ground
|
3 |
|
Bedrooms Below Ground
|
1 |
|
Bedrooms Total
|
4 |
|
Age
|
51 To 99 Years |
|
Amenities
|
Fireplace(s) |
|
Appliances
|
Water Meter, Water Heater, Dishwasher, Dryer, Microwave, Stove, Washer, Window Coverings, Refrigerator |
|
Basement Development
|
Finished |
|
Basement Type
|
Full (finished) |
|
Construction Style Attachment
|
Detached |
|
Construction Style Split Level
|
Backsplit |
|
Cooling Type
|
Central Air Conditioning |
|
Exterior Finish
|
Brick, Vinyl Siding |
|
Fireplace Present
|
Yes |
|
Fireplace Total
|
1 |
|
Foundation Type
|
Concrete |
|
Heating Fuel
|
Natural Gas |
|
Heating Type
|
Forced Air |
|
Size Interior
|
1,100 - 1,500 Ft2 |
|
Type
|
House |
|
Utility Water
|
Municipal Water |
Parking
Land
|
Acreage
|
No |
|
Fence Type
|
Fully Fenced, Fenced Yard |
|
Land Amenities
|
Park, Public Transit |
|
Sewer
|
Sanitary Sewer |
|
Size Depth
|
110 Ft |
|
Size Frontage
|
58 Ft |
|
Size Irregular
|
58 X 110 Ft |
|
Size Total Text
|
58 X 110 Ft|under 1/2 Acre |
|
Zoning Description
|
Rl1 |
Rooms
| Level |
Type |
Length |
Width |
Dimensions |
|
Basement |
Bathroom |
1.86 m |
2.68 m |
1.86 m x 2.68 m |
|
Basement |
Kitchen |
4.78 m |
3.71 m |
4.78 m x 3.71 m |
|
Basement |
Bedroom |
4.54 m |
2.62 m |
4.54 m x 2.62 m |
|
Basement |
Utility Room |
2.4 m |
2.62 m |
2.4 m x 2.62 m |
|
Lower Level |
Bathroom |
1.82 m |
2.37 m |
1.82 m x 2.37 m |
|
Lower Level |
Family Room |
4.72 m |
9.93 m |
4.72 m x 9.93 m |
|
Main Level |
Foyer |
1.82 m |
3.38 m |
1.82 m x 3.38 m |
|
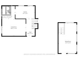
Main Level |
Living Room |
5.05 m |
3.38 m |
5.05 m x 3.38 m |
|
Main Level |
Dining Room |
2.47 m |
2.77 m |
2.47 m x 2.77 m |
|
Main Level |
Kitchen |
4.17 m |
2.77 m |
4.17 m x 2.77 m |
|
Main Level |
Sunroom |
3.87 m |
6.49 m |
3.87 m x 6.49 m |
|
Upper Level |
Bedroom |
2.46 m |
3.77 m |
2.46 m x 3.77 m |
|
Upper Level |
Bedroom 2 |
2.46 m |
2.62 m |
2.46 m x 2.62 m |
|
Upper Level |
Primary Bedroom |
4.54 m |
3.38 m |
4.54 m x 3.38 m |
|
Upper Level |
Bathroom |
1.86 m |
2.68 m |
1.86 m x 2.68 m |
Utilities
|
Cable
|
Installed |
|
Electricity
|
Installed |
|
Sewer
|
Installed |
https://www.realtor.ca/real-estate/29621086/89-endicott-terrace-welland-prince-charles-769-prince-charles