3 Bedroom
2 Bathroom
1,000 - 1,199 ft2
Wall Unit
Radiant Heat
$439,999Maintenance, Electricity, Common Area Maintenance, Water, Insurance
$791.38 Monthly
This stunning 3-bed, 2-bath condo unit is located on the 9th floor of the highly sought-after 15 Towering Heights, offering an unparalleled living experience in a prime location. With sweeping views of lush greenery and ample natural light, this home provides a tranquil retreat while being conveniently close to schools, shopping, public transit, and major highways. Upon entering, you're welcomed by a bright and spacious living area featuring large windows that allow for an abundance of natural light. The sleek laminate flooring throughout adds a modern touch, providing both beauty and easy maintenance. The open-concept design seamlessly connects the living and dining areas, making it perfect for entertaining or simply enjoying a quiet night at home.The condo boasts a well-appointed kitchen with ample counter space, ideal for preparing meals or hosting guests. Each of the three bedrooms is generously sized, offering comfortable living space for family members or guests. The master bedroom is a true retreat, complete with access to the private 2-peice bathroom, large windows and a double closet. Residents of 15 Towering Heights enjoy a range of premium amenities, including: an indoor pool and workout room for year-round relaxation and fitness. A sauna for unwinding after a busy day, A game room for leisure and fun, and a library for quiet moments and reading. This condo also includes an exclusive storage locker for added convenience and space. The buildings monthly condo fee covers essential utilities, including building insurance, common element fees, hydro, and water, providing peace of mind and ease of living. Parking can be rented on a monthly basis, and there is plenty of visitor parking.This condo at 15 Towering Heights offers a perfect balance of luxurious living, functional space, and community amenities. Whether you're relaxing at home, enjoying the building's amenities, or exploring the nearby conveniences, this property is the ideal place to call home. (id:61594)
Property Details
|
MLS® Number
|
X12673196 |
|
Property Type
|
Single Family |
|
Community Name
|
461 - Glendale/Glenridge |
|
Community Features
|
Pets Allowed With Restrictions |
|
Features
|
Balcony, Carpet Free, Laundry- Coin Operated |
Building
|
Bathroom Total
|
2 |
|
Bedrooms Above Ground
|
3 |
|
Bedrooms Total
|
3 |
|
Age
|
51 To 99 Years |
|
Amenities
|
Storage - Locker |
|
Appliances
|
Dishwasher, Microwave, Stove, Window Coverings, Refrigerator |
|
Basement Type
|
None |
|
Cooling Type
|
Wall Unit |
|
Exterior Finish
|
Concrete |
|
Flooring Type
|
Laminate |
|
Half Bath Total
|
1 |
|
Heating Fuel
|
Other |
|
Heating Type
|
Radiant Heat |
|
Size Interior
|
1,000 - 1,199 Ft2 |
|
Type
|
Apartment |
Parking
Land
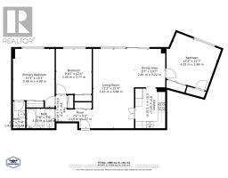
Rooms
| Level |
Type |
Length |
Width |
Dimensions |
|
Main Level |
Living Room |
6.64 m |
3.43 m |
6.64 m x 3.43 m |
|
Main Level |
Dining Room |
3.22 m |
2.61 m |
3.22 m x 2.61 m |
|
Main Level |
Kitchen |
3.32 m |
2.51 m |
3.32 m x 2.51 m |
|
Main Level |
Primary Bedroom |
4.9 m |
3.48 m |
4.9 m x 3.48 m |
|
Main Level |
Bedroom 2 |
3.77 m |
3 m |
3.77 m x 3 m |
|
Main Level |
Bedroom 3 |
3.84 m |
4.2 m |
3.84 m x 4.2 m |
|
Main Level |
Bathroom |
2.35 m |
1.64 m |
2.35 m x 1.64 m |
|
Main Level |
Foyer |
1.57 m |
2.19 m |
1.57 m x 2.19 m |
https://www.realtor.ca/real-estate/29225797/904-15-towering-heights-boulevard-st-catharines-glendaleglenridge-461-glendaleglenridge