10 Bedroom
4 Bathroom
3,500 - 5,000 ft2
Central Air Conditioning
Forced Air
$944,000
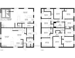
LEGAL DUPLEX. Get 2 homes next to each other and 3 minutes walk from beach on a BIG LOT. Room for your entire extended family - and all your friends! This very rare property offers 2 fully independent 1,500 sq ft units under single ownership, each with its own private entrance, providing the perfect setup for multi-generational living or short-term rental income. Live in one unit and rent out the other - or use both for your own gatherings.This solid and spotless home features 10 bedrooms and 4 bathrooms across large, open-concept living areas with many recent interior upgrades. Over $90,000 has been spent on improvements including a new air conditioner, furnace, water heater, appliances, flooring, soffits, and gutters - ensuring comfort and peace of mind for years to come.Set on a large private corner lot (0.688 acre) with access from two streets, the property also backs onto a township-owned treed park, providing exceptional privacy and space. Enjoy forced-air heating, a paved driveway, and two oversized sheds for all your storage needs.The beautiful sandy beach on Georgian Bay is just a 3-minute walk away, with local shops, LCBO, and delis only 5 minutes by car. In winter, take advantage of nearby snowmobile trails or head to Collingwood and Blue Mountain, just 50 minutes away.This property is licensed for short-term rentals, and offers future development potential given its dual-street access and generous lot size. With immediate possession available and only 90 minutes from the GTA, this is an exceptional opportunity for family enjoyment or investment income. (id:61594)
Property Details
|
MLS® Number
|
S12845280 |
|
Property Type
|
Single Family |
|
Community Name
|
Rural Tiny |
|
Amenities Near By
|
Beach |
|
Easement
|
None |
|
Parking Space Total
|
8 |
|
Structure
|
Shed |
Building
|
Bathroom Total
|
4 |
|
Bedrooms Above Ground
|
5 |
|
Bedrooms Below Ground
|
5 |
|
Bedrooms Total
|
10 |
|
Appliances
|
All, Window Coverings |
|
Basement Type
|
None |
|
Construction Style Attachment
|
Detached |
|
Cooling Type
|
Central Air Conditioning |
|
Exterior Finish
|
Brick, Vinyl Siding |
|
Fire Protection
|
Alarm System, Smoke Detectors |
|
Flooring Type
|
Vinyl |
|
Foundation Type
|
Block |
|
Half Bath Total
|
2 |
|
Heating Fuel
|
Natural Gas |
|
Heating Type
|
Forced Air |
|
Stories Total
|
2 |
|
Size Interior
|
3,500 - 5,000 Ft2 |
|
Type
|
House |
|
Utility Water
|
Drilled Well |
Parking
Land
|
Acreage
|
No |
|
Land Amenities
|
Beach |
|
Sewer
|
Septic System |
|
Size Irregular
|
1.8 X 150 Acre ; N/a |
|
Size Total Text
|
1.8 X 150 Acre ; N/a|under 1/2 Acre |
Rooms
| Level |
Type |
Length |
Width |
Dimensions |
|
Second Level |
Bedroom |
3.29 m |
3.2 m |
3.29 m x 3.2 m |
|
Second Level |
Bedroom 2 |
2.77 m |
2.74 m |
2.77 m x 2.74 m |
|
Second Level |
Bedroom 3 |
3.93 m |
3.59 m |
3.93 m x 3.59 m |
|
Second Level |
Bedroom 4 |
2.98 m |
3.59 m |
2.98 m x 3.59 m |
|
Second Level |
Den |
3.29 m |
2.37 m |
3.29 m x 2.37 m |
|
Second Level |
Bedroom |
3.3 m |
3.44 m |
3.3 m x 3.44 m |
|
Second Level |
Bedroom 2 |
3.7 m |
3.17 m |
3.7 m x 3.17 m |
|
Second Level |
Bedroom 3 |
2.93 m |
3.39 m |
2.93 m x 3.39 m |
|
Second Level |
Bedroom 4 |
3.99 m |
3.39 m |
3.99 m x 3.39 m |
|
Second Level |
Bedroom 5 |
2.78 m |
2.62 m |
2.78 m x 2.62 m |
|
Main Level |
Living Room |
3.66 m |
2.62 m |
3.66 m x 2.62 m |
|
Main Level |
Kitchen |
5.7 m |
2.57 m |
5.7 m x 2.57 m |
|
Main Level |
Dining Room |
4.9 m |
4.21 m |
4.9 m x 4.21 m |
|
Main Level |
Kitchen |
4.02 m |
6.77 m |
4.02 m x 6.77 m |
|
Main Level |
Family Room |
5.73 m |
6.75 m |
5.73 m x 6.75 m |
|
Main Level |
Dining Room |
5.69 m |
2.58 m |
5.69 m x 2.58 m |
https://www.realtor.ca/real-estate/29427550/910-concession-rd-17-w-tiny-rural-tiny