4 Bedroom
4 Bathroom
700 - 1,100 ft2
Raised Bungalow
None
Forced Air
$560,000
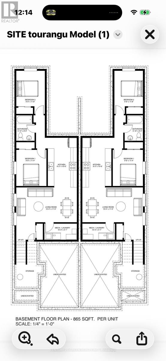
## HOUSE NOT YET BUILT ##. Pre construction Sale. 2 Bedroom 2 Full Washroom Semi-detached Raised Bungalow with 2 Bedroom and 2 full Washroom LEGAL Basement Apartment with Separate Entrance and Separate Laundry Room for extended family or future Rental income. Offering modern design and thoughtful layout, feature an open-concept main floor, contemporary finishes. Located in a growing community with access to schools, parks, and everyday amenities. The town features a River and scenic surroundings nearby, enhancing the overall lifestyle appeal. An excellent opportunity for end-users and investors to secure a new-build home in very affordable and unbelievable price. ("Digitally enhanced image for illustrative purposes only. No representation of actual views"). (id:61594)
Property Details
|
MLS® Number
|
X12768928 |
|
Property Type
|
Single Family |
|
Community Name
|
Wallaceburg |
|
Parking Space Total
|
2 |
Building
|
Bathroom Total
|
4 |
|
Bedrooms Above Ground
|
2 |
|
Bedrooms Below Ground
|
2 |
|
Bedrooms Total
|
4 |
|
Age
|
New Building |
|
Appliances
|
Range, Dryer, Two Stoves, Two Washers, Two Refrigerators |
|
Architectural Style
|
Raised Bungalow |
|
Basement Features
|
Apartment In Basement, Separate Entrance |
|
Basement Type
|
N/a, N/a |
|
Construction Style Attachment
|
Semi-detached |
|
Cooling Type
|
None |
|
Exterior Finish
|
Brick Facing, Aluminum Siding |
|
Foundation Type
|
Concrete |
|
Heating Fuel
|
Natural Gas |
|
Heating Type
|
Forced Air |
|
Stories Total
|
1 |
|
Size Interior
|
700 - 1,100 Ft2 |
|
Type
|
House |
|
Utility Water
|
Municipal Water |
Parking
Land
|
Acreage
|
No |
|
Sewer
|
Sanitary Sewer |
|
Size Depth
|
125 Ft |
|
Size Frontage
|
25 Ft |
|
Size Irregular
|
25 X 125 Ft |
|
Size Total Text
|
25 X 125 Ft|under 1/2 Acre |
|
Zoning Description
|
Residential |
Rooms
| Level |
Type |
Length |
Width |
Dimensions |
|
Basement |
Bedroom |
11.4 m |
9.6 m |
11.4 m x 9.6 m |
|
Basement |
Bedroom 2 |
11.8 m |
9.6 m |
11.8 m x 9.6 m |
|
Basement |
Living Room |
15.6 m |
9.2 m |
15.6 m x 9.2 m |
|
Basement |
Laundry Room |
10.3 m |
5.1 m |
10.3 m x 5.1 m |
|
Flat |
Bedroom |
11.4 m |
10 m |
11.4 m x 10 m |
|
Flat |
Bedroom 2 |
11.8 m |
10 m |
11.8 m x 10 m |
|
Flat |
Living Room |
20 m |
13.6 m |
20 m x 13.6 m |
|
Flat |
Kitchen |
16 m |
9.8 m |
16 m x 9.8 m |
|
Flat |
Laundry Room |
5.7 m |
4.6 m |
5.7 m x 4.6 m |
https://www.realtor.ca/real-estate/29337072/lot-2-block-6-elizabeth-street-e-chatham-kent-wallaceburg-wallaceburg