3 Bedroom
3 Bathroom
1,500 - 2,000 ft2
Fireplace
Central Air Conditioning
Forced Air
$707,000
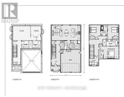
Carmo Building Group is now building in Cottonwoods, a growing community on the eastern outskirts of Aylmer. Offering 40' and 50' lots, this development features a variety of desirable settings including pond views, forested greenspace, and corner lots. The Eras model is proposed for Lot 7 and showcases a brick and vinyl exterior, offering 1,794 sq ft of finished living space in a thoughtfully designed two-storey layout with a double garage.Designed with both function and style in mind, the main level features a spacious mudroom, open-concept living, and a generous kitchen complete with quartz countertops and a pantry. Upstairs, you will find convenient second-floor laundry, a well-appointed primary suite with a walk-in closet and large 5-piece ensuite, and a Jack and Jill bathroom serving bedrooms two and three. Both secondary bedrooms enjoy pond views, as do the kitchen and living room.Built to spec, this home can be customized with upgrades to suit the buyer's preferences. Available finishes, workmanship, and upgrade options can be viewed at the Carmo Building Group model home on Lot 22. Price includes proposed 2026 HST rebates. Final rebate amount is subject to the passing of Provincial/Federal legislation and purchaser eligibility (Primary Residence/Qualifying Rental) as per government guidelines. (id:61594)
Property Details
|
MLS® Number
|
X12908470 |
|
Property Type
|
Single Family |
|
Community Name
|
Aylmer |
|
Equipment Type
|
Water Heater - Gas, Water Heater |
|
Parking Space Total
|
5 |
|
Rental Equipment Type
|
Water Heater - Gas, Water Heater |
Building
|
Bathroom Total
|
3 |
|
Bedrooms Above Ground
|
3 |
|
Bedrooms Total
|
3 |
|
Basement Development
|
Unfinished |
|
Basement Type
|
Full (unfinished) |
|
Construction Style Attachment
|
Detached |
|
Cooling Type
|
Central Air Conditioning |
|
Exterior Finish
|
Brick, Vinyl Siding |
|
Fireplace Present
|
Yes |
|
Foundation Type
|
Concrete |
|
Half Bath Total
|
1 |
|
Heating Fuel
|
Natural Gas |
|
Heating Type
|
Forced Air |
|
Stories Total
|
2 |
|
Size Interior
|
1,500 - 2,000 Ft2 |
|
Type
|
House |
|
Utility Water
|
Municipal Water |
Parking
Land
|
Acreage
|
No |
|
Sewer
|
Sanitary Sewer |
|
Size Depth
|
114 Ft ,9 In |
|
Size Frontage
|
45 Ft ,10 In |
|
Size Irregular
|
45.9 X 114.8 Ft |
|
Size Total Text
|
45.9 X 114.8 Ft|under 1/2 Acre |
|
Zoning Description
|
R1-8 |
Rooms
| Level |
Type |
Length |
Width |
Dimensions |
|
Second Level |
Primary Bedroom |
4.45 m |
3.61 m |
4.45 m x 3.61 m |
|
Second Level |
Bedroom |
3.63 m |
3.2 m |
3.63 m x 3.2 m |
|
Second Level |
Bedroom |
3.63 m |
3.2 m |
3.63 m x 3.2 m |
|
Second Level |
Laundry Room |
2.62 m |
1.83 m |
2.62 m x 1.83 m |
|
Main Level |
Kitchen |
4.27 m |
2.74 m |
4.27 m x 2.74 m |
|
Main Level |
Dining Room |
4.27 m |
2.13 m |
4.27 m x 2.13 m |
|
Main Level |
Great Room |
4.27 m |
3.35 m |
4.27 m x 3.35 m |
|
Main Level |
Mud Room |
2.44 m |
1.96 m |
2.44 m x 1.96 m |
https://www.realtor.ca/real-estate/29501919/lot-7-aspen-parkway-aylmer-aylmer